ID - 32063007
იყიდება 11 ოთახიანი სასტუმრო მესტიაში



+ 52026.02.05-ის შემდეგ განცხადება ვადაგასულია ან წაშლილია
ID - 32063007
იყიდება 11 ოთახიანი სასტუმრო მესტიაში
მესტია
06/01/26 - 21:15
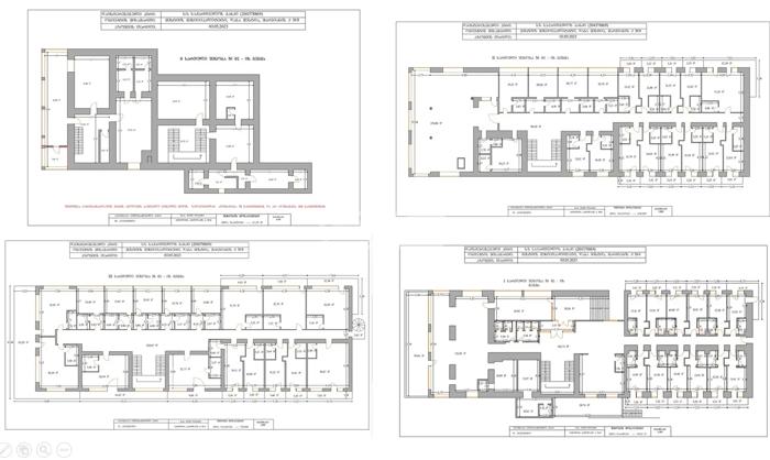
საერთო ფართი
2502 მ²ოთახი
11აღწერა
იყიდება 2,431 კვ.მ მიწის ნაკვეთზე არსებული 50 ნომრიანი 2,502 კვ.მ სასტუმრო მესტიაში, ქალაქის ცენტრალურ ნაწილში, სასტუმროდან 5 წუთის სავალში მდებარეობს სვანეთის ისტორიულ-ეთნოგრაფიული მუზეუმი და თეთნულდის საბაგირო.
მდგომარეობა
ძველი რემონტითსტატუსი
ახალი აშენებულიდამატებითი ინფორმაცია
კონდიციონერი
აივანი
მაცივარი
ავეჯი
ცხელი წყალი
ტელევიზორი
Wi-Fi
ფასი შეთანხმებით
ნინაშკა