ss.ge logo
ss.ge logo

უძრავი ქონება

ქარ
ss.ge logo

უძრავი ქონება

ss.ge logo

უძრავი ქონება

ქარ
23 მარ, 22:27
32
ID - 34920662

იყიდება კომერციული ფართი დიღმის მასივში

აღმაშენებლის ხეივანი (დიღმის მასივი)

3,800,000
$
1 მ² - 1166 $
იპოთეკა
108,234 თვეში
3260m²

ფართი

ფართი

3260m²

აღწერა

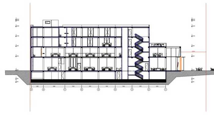
იყიდება პრემიუმ კლასის კომერციული შენობა - დიღომში (აღმაშენებლის ხეივანი) საინვესტიციო შესაძლებლობა თბილისის ყველაზე აქტიურ ბიზნეს ზონაში! იყიდება ახალი, თანამედროვე არქიტექტურის მქონე მრავალფუნქციური კომერციული კომპლექსი, რომელიც მდებარეობს სტრატეგიულ ადგილას — დიღმის მასივში, ვეფხისტყაოსნის ქუჩაზე (აღმაშენებლის ხეივანთან). შენობა იდეალურია შოურუმისთვის, ჰიპერმარკეტისთვის, კლინიკისთვის ან სათავო ოფისისთვის. ძირითადი მახასიათებლები: • მისამართი: ქ. თბილისი, აღმაშენებლის ხეივანი • სართულების რაოდენობა: 4 კომერციული სართული + მიწისქვეშა ავტოსადგომი. • შენობის სიმაღლე: 16 მეტრი. ფართების განაწილება: • I და II სართულები: დაახლოებით 750 + 475 კვ.მ — იდეალურია სავაჭრო ობიექტებისთვის (ვიტრაჟული ფასადი ხეივნის ხედით). • III და IV სართულები: 480 + 410 კვ.მ ფართობი — საგამოფენო დარბაზებისთვის, რესტორნისთვის ან VIP ოფისებისთვის (ულამაზესი ტერასებითა და ხედებით). • ანტრესოლები: დამატებითი კომერციული სივრცეები სართულებზე. • მიწისქვეშა სართული (-1): დიდი დაცული პარკინგი 35 ავტომობილზე და 2 დამხმარე საწყობი (ჯამში 565.6 კვ.მ). ტექნიკური უპირატესობები: • ვიტრაჟული ფასადი: მაღალი ხილვადობა ცენტრალური ავტომაგისტრალიდან. • უსაფრთხოება: შენობა აღჭურვილია სახანძრო უსაფრთხოების უახლესი სისტემებით (სპრინკლერები, კვამლის დეტექტორები, სახანძრო კიბეები). • კომფორტი: თანამედროვე ლიფტები, სველი წერტილები ყველა სართულზე და მოწესრიგებული ვენტილაცია. • სტრატეგიული ლოკაცია: გარშემორტყმულია მსხვილი სავაჭრო ცენტრებითა და ავტოსალონებით.

დეტალური ინფორმაცია

მდგომარეობა

ახალი რემონტით

სტატუსი

ახალი აშენებული

დამატებითი ინფორმაცია

კონდიციონერი

აივანი

სარდაფი

საკაბელო ტელევიზია

მაცივარი

ავეჯი

ჩაშენებული სამზარეულო

გარაჟი

მინა-პაკეტი

ცენტ. გათბობა

ინტერნეტი

რკინის კარი

ბუნებრივი აირი

სიგნალიზაცია

სათავსო

ტელეფონი

ტელევიზორი

სასწრაფოდ

სასწრაფოდ

იპოთეკური კალკულატორი
ქონების ღირებულება10,258,000
წინასწარი შენატანი 20%
2,051,600
სესხის ვადა
15წელი

საპროცენტო განაკვეთი 12.1%-დან / ეფექტური საპროცენტო განაკვეთი 14.21%-დან.ნომინალური და ეფექტური საპროცენტო განაკვეთი, წარმოადგენს საკრედიტო პროდუქტის მინიმალურ ოდენობას. რეალური მონაცემები დაზუსტდება, სესხის დამტკიცების მომენტში. ცხრილში მოცემული საპროცენტო განაკვეთი მიბმულია საჯარო ინდექსზე - TIBR1M

პროცენტი

წინასწარი შენატანი

ძირი

ყოველთვიური შესატანი99,019
სულ გადასახდელი19,875,051

შეარჩიე ნებისმიერი ღირებულების სახლი და მიიღე სრული დაფინანსება

3260 მ²

საერთო ფართი

საერთო ფართი

3260 მ²

აღწერა

იყიდება პრემიუმ კლასის კომერციული შენობა - დიღომში (აღმაშენებლის ხეივანი) საინვესტიციო შესაძლებლობა თბილისის ყველაზე აქტიურ ბიზნეს ზონაში! იყიდება ახალი, თანამედროვე არქიტექტურის მქონე მრავალფუნქციური კომერციული კომპლექსი, რომელიც მდებარეობს სტრატეგიულ ადგილას — დიღმის მასივში, ვეფხისტყაოსნის ქუჩაზე (აღმაშენებლის ხეივანთან). შენობა იდეალურია შოურუმისთვის, ჰიპერმარკეტისთვის, კლინიკისთვის ან სათავო ოფისისთვის. ძირითადი მახასიათებლები: • მისამართი: ქ. თბილისი, აღმაშენებლის ხეივანი • სართულების რაოდენობა: 4 კომერციული სართული + მიწისქვეშა ავტოსადგომი. • შენობის სიმაღლე: 16 მეტრი. ფართების განაწილება: • I და II სართულები: დაახლოებით 750 + 475 კვ.მ — იდეალურია სავაჭრო ობიექტებისთვის (ვიტრაჟული ფასადი ხეივნის ხედით). • III და IV სართულები: 480 + 410 კვ.მ ფართობი — საგამოფენო დარბაზებისთვის, რესტორნისთვის ან VIP ოფისებისთვის (ულამაზესი ტერასებითა და ხედებით). • ანტრესოლები: დამატებითი კომერციული სივრცეები სართულებზე. • მიწისქვეშა სართული (-1): დიდი დაცული პარკინგი 35 ავტომობილზე და 2 დამხმარე საწყობი (ჯამში 565.6 კვ.მ). ტექნიკური უპირატესობები: • ვიტრაჟული ფასადი: მაღალი ხილვადობა ცენტრალური ავტომაგისტრალიდან. • უსაფრთხოება: შენობა აღჭურვილია სახანძრო უსაფრთხოების უახლესი სისტემებით (სპრინკლერები, კვამლის დეტექტორები, სახანძრო კიბეები). • კომფორტი: თანამედროვე ლიფტები, სველი წერტილები ყველა სართულზე და მოწესრიგებული ვენტილაცია. • სტრატეგიული ლოკაცია: გარშემორტყმულია მსხვილი სავაჭრო ცენტრებითა და ავტოსალონებით.

დეტალური ინფორმაცია

მდგომარეობა

ახალი რემონტით

სტატუსი

ახალი აშენებული

დამატებითი ინფორმაცია

კონდიციონერი

აივანი

სარდაფი

საკაბელო ტელევიზია

მაცივარი

ავეჯი

ჩაშენებული სამზარეულო

გარაჟი

მინა-პაკეტი

ცენტ. გათბობა

ინტერნეტი

რკინის კარი

ბუნებრივი აირი

სიგნალიზაცია

სათავსო

ტელეფონი

ტელევიზორი

იპოთეკური კალკულატორი
ქონების ღირებულება10,258,000
წინასწარი შენატანი 20%
2,051,600
სესხის ვადა
15წელი

საპროცენტო განაკვეთი 12.1%-დან / ეფექტური საპროცენტო განაკვეთი 14.21%-დან.ნომინალური და ეფექტური საპროცენტო განაკვეთი, წარმოადგენს საკრედიტო პროდუქტის მინიმალურ ოდენობას. რეალური მონაცემები დაზუსტდება, სესხის დამტკიცების მომენტში. ცხრილში მოცემული საპროცენტო განაკვეთი მიბმულია საჯარო ინდექსზე - TIBR1M

პროცენტი

წინასწარი შენატანი

ძირი

ყოველთვიური შესატანი99,019
სულ გადასახდელი19,875,051

შეარჩიე ნებისმიერი ღირებულების სახლი და მიიღე სრული დაფინანსება