ss.ge logo
ss.ge logo

უძრავი ქონება

ქარ
ss.ge logo

უძრავი ქონება

ss.ge logo

უძრავი ქონება

ქარ
01 აპრ, 21:34
42
ID - 35029430

იყიდება 5 ოთახიანი კერძო სახლი დიღომში

დიღომი 7

800,000
$
1 მ² - 1429 $
იპოთეკა
22,801 თვეში
560m²

ფართი

358m²

ეზოს ფართი

5

ოთახი

3

საძინებელი

ფართი

560m²

ეზოს ფართი

358m²

ოთახი

5

საძინებელი

3

აღწერა

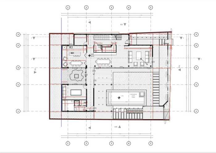
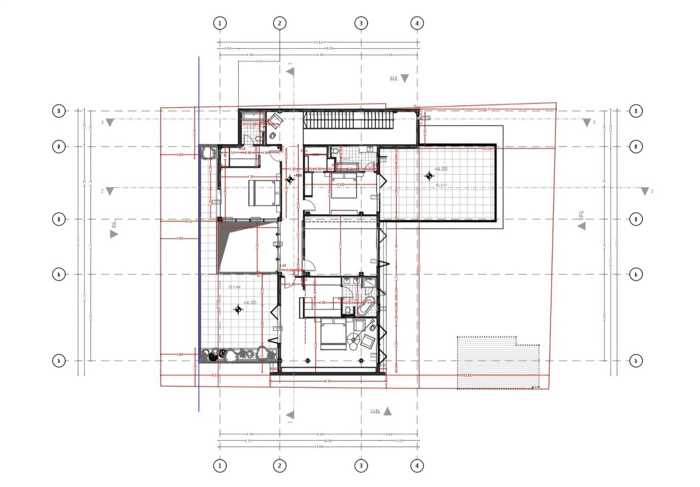
ექსკლუზიური ვილა დიღომში – არქიტექტურული შედევრი აუზით ​ აღწერა: იყიდება 560.8 კვ.მ. ფართობის High-End კლასის ვილა დიღომის 8 -ში . პროექტი შექმნილია მათთვის, ვინც ეძებს თანამედროვე, მინიმალისტურ არქიტექტურასა და სრულ პრივატულობას. ​მდგომარეობა: მწვანე კარკასი. გამოყენებულია უმაღლესი ხარისხის სამშენებლო მასალები, პრემიუმ კლასის ალუმინის ვიტრაჟები და ენერგოეფექტური სისტემები. ​რატომ არის ეს პროექტი უნიკალური? ​L-Shape არქიტექტურა: სახლის გეგმარება ქმნის შიდა, სრულად იზოლირებულ ეზოს, რაც დიღმის პირობებში იშვიათი ფუფუნებაა. ​3 მასტერ-საძინებელი: მეორე სართულზე განთავსებულია 3 დიდი საძინებელი, თითოეულს აქვს საკუთარი სველი წერტილი და საგარდერობო. ​ Wellness & Entertainment: პირველ სართულზე გათვალისწინებულია საუნა საკუთარი სველი წერტილით და დიდი საბილიარდო ოთახი. ​ატრიუმი: სახლის შუაგულში არსებული ღია სივრცე (ატრიუმი) უზრუნველყოფს დამატებით განათებას და განსხვავებულ ესთეტიკას. ​ დეტალური მონაცემები: ​ნაკვეთი: 683 კვ.მ. (დაზუსტებული). ​თავისუფალი ეზო: 359 კვ.მ. (რულონური ბალახითა და მოწესრიგებული ინფრასტრუქტურით). ​აუზი: 25.6 კვ.მ. (კაპიტალური კონსტრუქცია). ​ავტოსადგომი: 17.8 კვ.მ. ​ სახლი აშენებულია ექსკლუზიური პროექტით და წარმოადგენს საუკეთესო საინვესტიციო ობიექტს ბაზარზე. ​ფასი: $800 000 საკონტაქტო: 555 232 756

დეტალური ინფორმაცია

მდგომარეობა

მწვანე კარკასი

სტატუსი

ახალი აშენებული

დამატებითი ინფორმაცია

აივანი

სარდაფი

სასმელი წყალი

ავეჯი

ჩაშენებული სამზარეულო

გარაჟი

ცენტ. გათბობა

ბუნებრივი აირი

სათავსო

აუზი

სასწრაფოდ

სასწრაფოდ

იპოთეკური კალკულატორი
ქონების ღირებულება2,161,000
წინასწარი შენატანი 20%
432,200
სესხის ვადა
15წელი

საპროცენტო განაკვეთი 12.1%-დან / ეფექტური საპროცენტო განაკვეთი 14.21%-დან.ნომინალური და ეფექტური საპროცენტო განაკვეთი, წარმოადგენს საკრედიტო პროდუქტის მინიმალურ ოდენობას. რეალური მონაცემები დაზუსტდება, სესხის დამტკიცების მომენტში. ცხრილში მოცემული საპროცენტო განაკვეთი მიბმულია საჯარო ინდექსზე - TIBR1M

პროცენტი

წინასწარი შენატანი

ძირი

ყოველთვიური შესატანი20,860
სულ გადასახდელი4,186,975

შეარჩიე ნებისმიერი ღირებულების სახლი და მიიღე სრული დაფინანსება

დიაგრამა ასახავს დიღომში გასაყიდი კერძო სახლების მ²-ის ფასის ცვლილების დინამიკას
მ² - ის ფასი

იყიდება 5 ოთახიანი კერძო სახლი დიღომში

560 მ²

სახლის ფართი

358 მ²

ეზოს ფართი

5

ოთახი

3

საძინებელი

სახლის ფართი

560 მ²

ეზოს ფართი

358 მ²

ოთახი

5

საძინებელი

3

აღწერა

ექსკლუზიური ვილა დიღომში – არქიტექტურული შედევრი აუზით ​ აღწერა: იყიდება 560.8 კვ.მ. ფართობის High-End კლასის ვილა დიღომის 8 -ში . პროექტი შექმნილია მათთვის, ვინც ეძებს თანამედროვე, მინიმალისტურ არქიტექტურასა და სრულ პრივატულობას. ​მდგომარეობა: მწვანე კარკასი. გამოყენებულია უმაღლესი ხარისხის სამშენებლო მასალები, პრემიუმ კლასის ალუმინის ვიტრაჟები და ენერგოეფექტური სისტემები. ​რატომ არის ეს პროექტი უნიკალური? ​L-Shape არქიტექტურა: სახლის გეგმარება ქმნის შიდა, სრულად იზოლირებულ ეზოს, რაც დიღმის პირობებში იშვიათი ფუფუნებაა. ​3 მასტერ-საძინებელი: მეორე სართულზე განთავსებულია 3 დიდი საძინებელი, თითოეულს აქვს საკუთარი სველი წერტილი და საგარდერობო. ​ Wellness & Entertainment: პირველ სართულზე გათვალისწინებულია საუნა საკუთარი სველი წერტილით და დიდი საბილიარდო ოთახი. ​ატრიუმი: სახლის შუაგულში არსებული ღია სივრცე (ატრიუმი) უზრუნველყოფს დამატებით განათებას და განსხვავებულ ესთეტიკას. ​ დეტალური მონაცემები: ​ნაკვეთი: 683 კვ.მ. (დაზუსტებული). ​თავისუფალი ეზო: 359 კვ.მ. (რულონური ბალახითა და მოწესრიგებული ინფრასტრუქტურით). ​აუზი: 25.6 კვ.მ. (კაპიტალური კონსტრუქცია). ​ავტოსადგომი: 17.8 კვ.მ. ​ სახლი აშენებულია ექსკლუზიური პროექტით და წარმოადგენს საუკეთესო საინვესტიციო ობიექტს ბაზარზე. ​ფასი: $800 000 საკონტაქტო: 555 232 756

დეტალური ინფორმაცია

მდგომარეობა

მწვანე კარკასი

სტატუსი

ახალი აშენებული

დამატებითი ინფორმაცია

აივანი

სარდაფი

სასმელი წყალი

ავეჯი

ჩაშენებული სამზარეულო

გარაჟი

ცენტ. გათბობა

ბუნებრივი აირი

სათავსო

აუზი

იპოთეკური კალკულატორი
ქონების ღირებულება2,161,000
წინასწარი შენატანი 20%
432,200
სესხის ვადა
15წელი

საპროცენტო განაკვეთი 12.1%-დან / ეფექტური საპროცენტო განაკვეთი 14.21%-დან.ნომინალური და ეფექტური საპროცენტო განაკვეთი, წარმოადგენს საკრედიტო პროდუქტის მინიმალურ ოდენობას. რეალური მონაცემები დაზუსტდება, სესხის დამტკიცების მომენტში. ცხრილში მოცემული საპროცენტო განაკვეთი მიბმულია საჯარო ინდექსზე - TIBR1M

პროცენტი

წინასწარი შენატანი

ძირი

ყოველთვიური შესატანი20,860
სულ გადასახდელი4,186,975

შეარჩიე ნებისმიერი ღირებულების სახლი და მიიღე სრული დაფინანსება

დიაგრამა ასახავს დიღომში გასაყიდი კერძო სახლების მ²-ის ფასის ცვლილების დინამიკას
მ² - ის ფასი