იყიდება კერძო სახლი დიდ დიღომში



+ 32024.04.21-ის შემდეგ განცხადება ვადაგასულია ან წაშლილია
ID - 8112081
იყიდება კერძო სახლი დიდ დიღომში
ანდრონიკაშვილის ქ.
22/03/24 - 13:52
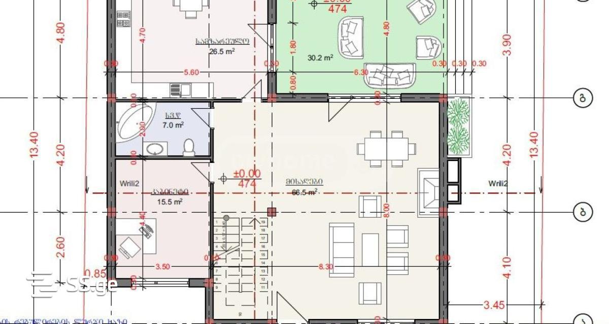
სახლის ფართი
600 მ²ოთახი
6საძინებელი
5სართული
0/0აღწერა
სასამართლოს და ტოიოტას ცენტრის უკან .საუკეთესო ადგილას ცენტრალური კანალიზაციით. საუკეთესო ადგილას ჩაგბარდებათ მწვანე კარკასი ფასადი დასრულები
მდგომარეობა
მწვანე კარკასისტატუსი
მშენებარედამატებითი ინფორმაცია
აივანი
სარდაფი
სასმელი წყალი
ავეჯი
ჩაშენებული სამზარეულო
გარაჟი
ცენტ. გათბობა
ბუნებრივი აირი
სათავსო
აუზი
ფასი შეთანხმებით
MAKA