იყიდება 4 ოთახიანი ბინა ვაკეში



+ 82025.04.12-ის შემდეგ განცხადება ვადაგასულია ან წაშლილია
ID - 31619607
იყიდება 4 ოთახიანი ბინა ვაკეში
თამარაშვილის ქ. (ვაკე)
13/03/25 - 18:59
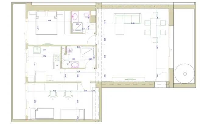
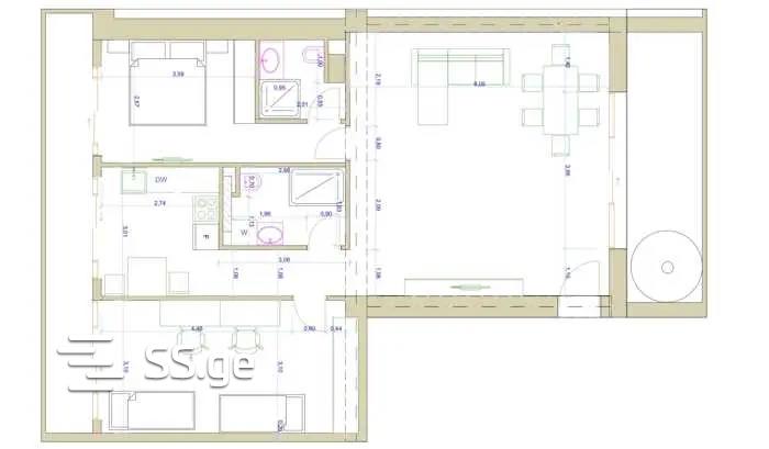
საერთო ფართი
121 მ²ოთახი
4საძინებელი
3სართული
15/15აღწერა
ბინა ვაკეში ჭავჭავაძის და თამარაშვილის კვეთაზეა,აქვს ულამაზესი ხედები,ბინა არის გამჭოლი.მიმდინარეობს,სარემონტო სამუშაოები,აქვს 2 სველი წერტილი,არის ბოლო სართული,მყიდველს შეუძლია მოაწყოს ტერასა,გვაქვს ბინის გეგმა და სამიდე დიზაინში გაკეთებული პროექტიც,(1 5 ს ჩათვლით ფოტოები არის დიზაინი) გამოდის სამი საძინებელი და დიდი მისაღები,სურვილის შემთხვევაში დამიკავშირდით
მდგომარეობა
სარემონტოსტატუსი
ახალი აშენებულიპროექტი
არასტანდარტულიდამატებითი ინფორმაცია
აივანი
სარდაფი
ლიფტი
ავეჯი
ჩაშენებული სამზარეულო
გარაჟი
ცენტ. გათბობა
ბოლო სართული
ბუნებრივი აირი
სათავსო
ფასი შეთანხმებით
ლუკა