იყიდება 4 ოთახიანი ბინა საბურთალოზე



+ 72023.12.25-ის შემდეგ განცხადება ვადაგასულია ან წაშლილია
ID - 7926824
იყიდება 4 ოთახიანი ბინა საბურთალოზე
პოლიტკოვსკაიას ქ. (ჯიქიას ქ.)
25/11/23 - 12:23
საერთო ფართი
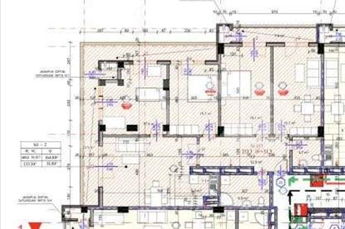
165 მ²ოთახი
4საძინებელი
3სართული
12/18აღწერა
იყიდება საბურთალოზე პოლიტკოვკაიას ქუჩაზე 4 ოთახიანი ბინა 3 ნათელი საძინებლით მწვანე კარკასის მდგომარეობაში მე-12 სართულზე.
სველი წერტილი
3მდგომარეობა
მწვანე კარკასისტატუსი
ახალი აშენებულიპროექტი
არასტანდარტულიდამატებითი ინფორმაცია
აივანი
სარდაფი
ლიფტი
ავეჯი
ჩაშენებული სამზარეულო
გარაჟი
ცენტ. გათბობა
ბოლო სართული
ბუნებრივი აირი
სათავსო
ფასი შეთანხმებით
საბა დოლიძე