ID - 32467885
იყიდება 3 ოთახიანი ბინა საბურთალოზე



+ 22025.09.12-ის შემდეგ განცხადება ვადაგასულია ან წაშლილია
ID - 32467885
იყიდება 3 ოთახიანი ბინა საბურთალოზე
შარტავას ქ. 43
29/07/25 - 22:33
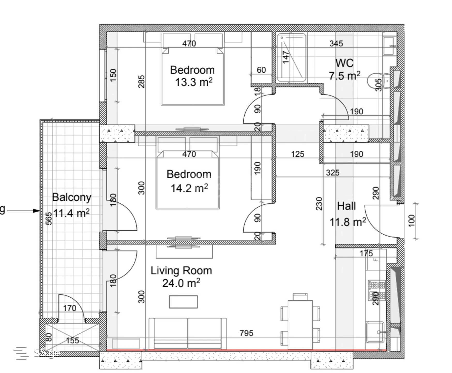
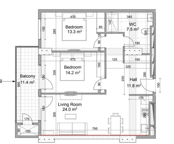
საერთო ფართი
87 მ²ოთახი
3საძინებელი
2სართული
27/37აღწერა
იყიდება ბინა განსაცვიფრებელი ხედებით ქალაქის ერთ-ერთ ყველაზე პრესტიჟულ ადგილას.
ბიზნეს კლასის სახლი მდებარეობს ქ. შარტავა, 42 (თეთრი კვადრატის დეველოპერი).
შენობის ქვედა სართულებზე განთავსდება Agrohub-ის, Georgia-ს და TBC Bank-ის ფილიალები, ასევე კლინიკა და მსოფლიო დონის ფიტნეს კლუბი.
კომპლექსს მოემსახურება 24-საათიანი დაცვის სამსახური.
ხედი ეზოზე
ხედი ქუჩაზე
ნათელი
მყუდრო
სველი წერტილი
1მდგომარეობა
მწვანე კარკასისტატუსი
ახალი აშენებულიპროექტი
არასტანდარტულიდამატებითი ინფორმაცია
აივანი
სარდაფი
ლიფტი
ავეჯი
ჩაშენებული სამზარეულო
გარაჟი
ცენტ. გათბობა
ბოლო სართული
ბუნებრივი აირი
სათავსო
ფასი შეთანხმებით
ლევან დ