იყიდება 3 ოთახიანი ბინა საბურთალოზე



2025.05.16-ის შემდეგ განცხადება ვადაგასულია ან წაშლილია
ID - 31942979
იყიდება 3 ოთახიანი ბინა საბურთალოზე
ძოწის ქ. 2
16/04/25 - 16:44
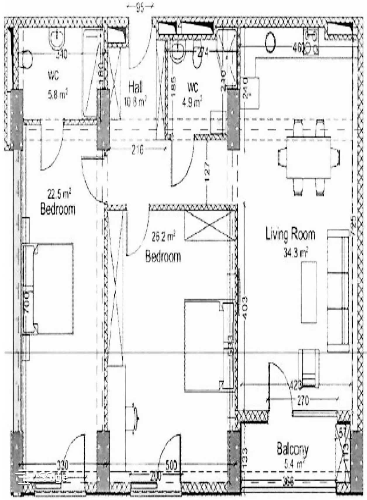
საერთო ფართი
112.5 მ²ოთახი
3საძინებელი
2სართული
2/14აღწერა
იყიდება სამოთახიანი (ორი საძინებელი, ერთი მისაღები, ორი აბაზანა) მშენებარე ბინა საბურთალოზე, ძოწის ქუჩაზე, თეთრი კვადრატის მშენებარე კორპუსში (ე.წ. „მინდელის პროექტის“ პირველ ბლოკში). ბინა ისეა განლაგებული, რომ ფანჯრებიც და აივანიც გზის მხარეს აქვს და წინ სხვა კორპუსი არ ეფარება. ბინის მდებარეობიდან გამომდინარე, არც მომავალშია შესაძლებელი მის წინ კორპუსის აშენება. დაინტერესების შემთხვევაში, დამატებით ავტოსადგომის შეძენაც შეგიძლიათ. ავტოსადგომის ღირებულება ბინის ღირებულებაში არ შედის. კორპუსის მშენებლობა თითქმის დასრულებულია (ამ ეტაპზე ტარდება ლიფტის შახტის მოწყობის და სხვა მსგავსი ტიპის სამუშაოები). ბინის მშენებლობა მწვანე კარკასის მდგომარეობით, სრულდება 2025 წლის სექტემბერში. ბანის მახასიათებლები: სრული ფართი - 107 მ2. საზაფხულო ფართი - 5.4 მ2 . სართული II.
სველი წერტილი
1მდგომარეობა
თეთრი კარკასისტატუსი
ახალი აშენებულიპროექტი
არასტანდარტულიდამატებითი ინფორმაცია
აივანი
სარდაფი
ლიფტი
ავეჯი
ჩაშენებული სამზარეულო
გარაჟი
ცენტ. გათბობა
ბოლო სართული
ბუნებრივი აირი
სათავსო
ფასი შეთანხმებით
Zizi