ID - 8111611
ID - 8111611
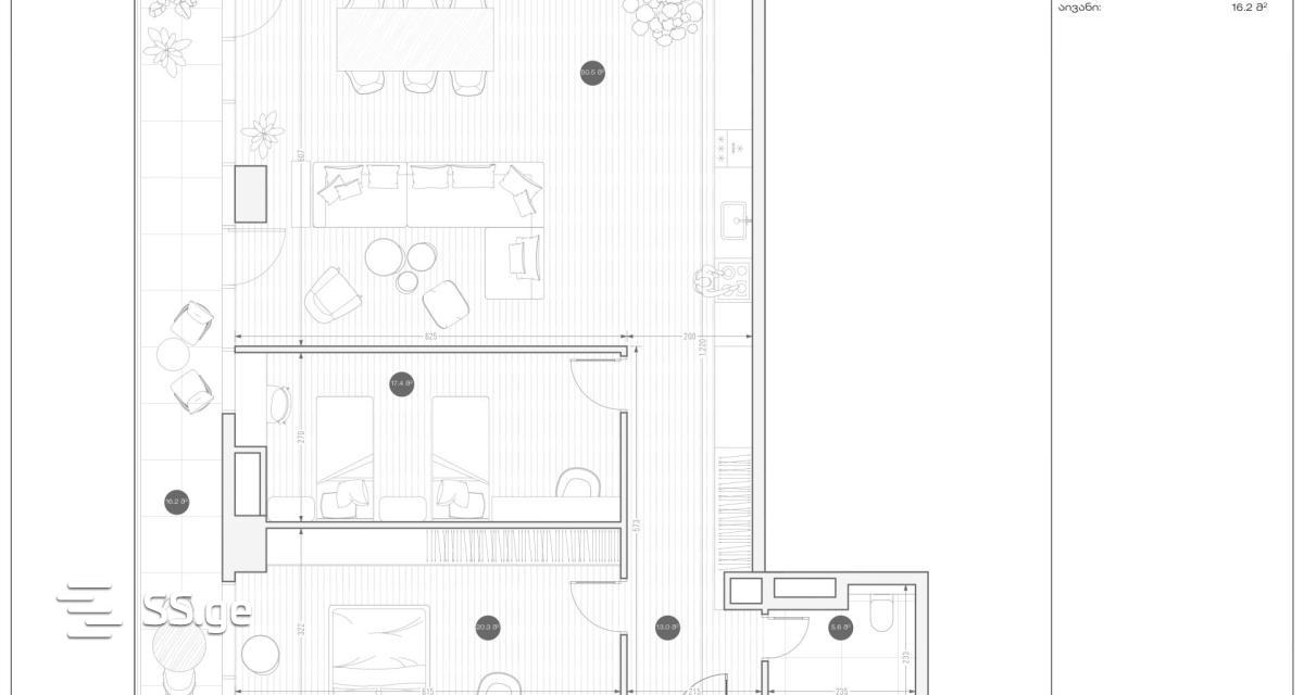
იყიდება 3 ოთახიანი ბინა ისანში
ბოჭორმის ქ.
21/03/24 - 16:27
საერთო ფართი
123 მ²ოთახი
3საძინებელი
2სართული
9/19აღწერა
ბინების მოცულობა იწყება 31 მ² -დან. მშენებლობა სრულდება 2026 წელს.ჩვენ გთავაზობთ გადახდის მოქნილ პირობებს,
მდგომარეობა
თეთრი კარკასისტატუსი
ახალი აშენებულიპროექტი
არასტანდარტულიდამატებითი ინფორმაცია
აივანი
სარდაფი
ლიფტი
ავეჯი
ჩაშენებული სამზარეულო
გარაჟი
ცენტ. გათბობა
ბოლო სართული
ბუნებრივი აირი
სათავსო
ფასი შეთანხმებით
Bacho



