ID - 8090686
ID - 8090686
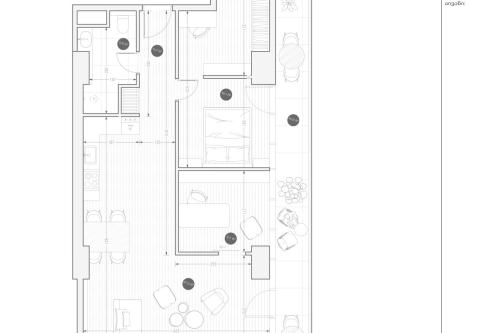
იყიდება 3 ოთახიანი ბინა ისანში
ბოჭორმის ქ.
07/02/24 - 16:50
საერთო ფართი
90.4 მ²ოთახი
3საძინებელი
2სართული
4/19აღწერა
ახალი პროექტი, რომელიც მდებარეობს თბილისის ისტორიულ ნაწილში - ავლაბარში, ბოჭორმის 23 ნომერში.ბინების მოცულობა იწყება 31 მ² -დან. მშენებლობა სრულდება 2026 წელს.ჩვენ გთავაზობთ გადახდის მოქნილ პირობებს, 0%-იანი პირველადი შენატანით.
მდგომარეობა
თეთრი კარკასისტატუსი
ახალი აშენებულიპროექტი
არასტანდარტულიდამატებითი ინფორმაცია
აივანი
სარდაფი
ლიფტი
ავეჯი
ჩაშენებული სამზარეულო
გარაჟი
ცენტ. გათბობა
ბოლო სართული
ბუნებრივი აირი
სათავსო
ფასი შეთანხმებით
Bacho



