ss.ge logo
ss.ge logo

უძრავი ქონება

ქარ
ss.ge logo

უძრავი ქონება

ss.ge logo

უძრავი ქონება

ქარ
13 თებ, 21:42
45
ID - 34501561

იყიდება 2 ოთახიანი ბინა ნუცუბიძის ფერდობზე

პ. დათუაშვილის ქ.

155,000
$
1 მ² - 1488 $
იპოთეკა
4,495 თვეში
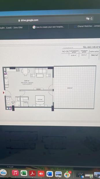
104.2m²

ფართი

2

ოთახი

1

საძინებელი

2/13

სართული

ფართი

104.2m²

ოთახი

2

საძინებელი

1

სართული

2/13

აღწერა

იყიდება 2 ოთახიანი ბინა, Blox (ბლოქსი ნუცუბიძეს პრესტიჟულ დასახლებაში. კორპუსი ჩაბარებული და შესახლებულია.. ბინა ახალი გარემონტებულია და აქვს 1 საძინებელი (მასტერ ბედრუმი) თავისი საგარდერობო სივრცით და აბაზანატუალეტით. ძვირადღირებული ავეჯით. ბინა ჩვენთვის გავარემონტეთ თუმცა ბავშვი გაგვიჩნდა და უფრო დიდ ბინას ვეძებთ, ამიტომაც ვყიდით. ასევე დიდი მისაღები სტუდიოს ტიპის და სტუმრების ტუალეტი (35კვ.მ). სამზარეულოში არის ყველაფერი, ჭურჭლის სარეცხი მანქანის ჩათვლით. ბინაში არის ულამაზესი ვერანდა რომელ

დეტალური ინფორმაცია

მდგომარეობა

ახალი რემონტით

სტატუსი

ახალი აშენებული

პროექტი

არასტანდარტული

დამატებითი ინფორმაცია

აივანი

სარდაფი

ლიფტი

ავეჯი

ჩაშენებული სამზარეულო

გარაჟი

ცენტ. გათბობა

ბოლო სართული

ბუნებრივი აირი

სათავსო

სასწრაფოდ

სასწრაფოდ

იპოთეკური კალკულატორი
ქონების ღირებულება426,000
წინასწარი შენატანი 20%
85,200
სესხის ვადა
15წელი

საპროცენტო განაკვეთი 12.1%-დან / ეფექტური საპროცენტო განაკვეთი 14.21%-დან.ნომინალური და ეფექტური საპროცენტო განაკვეთი, წარმოადგენს საკრედიტო პროდუქტის მინიმალურ ოდენობას. რეალური მონაცემები დაზუსტდება, სესხის დამტკიცების მომენტში. ცხრილში მოცემული საპროცენტო განაკვეთი მიბმულია საჯარო ინდექსზე - TIBR1M

პროცენტი

წინასწარი შენატანი

ძირი

ყოველთვიური შესატანი4,112
სულ გადასახდელი825,382

შეარჩიე ნებისმიერი ღირებულების სახლი და მიიღე სრული დაფინანსება

დიაგრამა ასახავს საბურთალოზე გასაყიდი ბინების მ²-ის ფასის ცვლილების დინამიკას
მ² - ის ფასი

იყიდება 2 ოთახიანი ბინა ნუცუბიძის ფერდობზე

104.2 მ²

საერთო ფართი

2

ოთახი

1

საძინებელი

2/13

სართული

საერთო ფართი

104.2 მ²

ოთახი

2

საძინებელი

1

სართული

2/13

აღწერა

იყიდება 2 ოთახიანი ბინა, Blox (ბლოქსი ნუცუბიძეს პრესტიჟულ დასახლებაში. კორპუსი ჩაბარებული და შესახლებულია.. ბინა ახალი გარემონტებულია და აქვს 1 საძინებელი (მასტერ ბედრუმი) თავისი საგარდერობო სივრცით და აბაზანატუალეტით. ძვირადღირებული ავეჯით. ბინა ჩვენთვის გავარემონტეთ თუმცა ბავშვი გაგვიჩნდა და უფრო დიდ ბინას ვეძებთ, ამიტომაც ვყიდით. ასევე დიდი მისაღები სტუდიოს ტიპის და სტუმრების ტუალეტი (35კვ.მ). სამზარეულოში არის ყველაფერი, ჭურჭლის სარეცხი მანქანის ჩათვლით. ბინაში არის ულამაზესი ვერანდა რომელ

დეტალური ინფორმაცია

მდგომარეობა

ახალი რემონტით

სტატუსი

ახალი აშენებული

პროექტი

არასტანდარტული

დამატებითი ინფორმაცია

აივანი

სარდაფი

ლიფტი

ავეჯი

ჩაშენებული სამზარეულო

გარაჟი

ცენტ. გათბობა

ბოლო სართული

ბუნებრივი აირი

სათავსო

იპოთეკური კალკულატორი
ქონების ღირებულება426,000
წინასწარი შენატანი 20%
85,200
სესხის ვადა
15წელი

საპროცენტო განაკვეთი 12.1%-დან / ეფექტური საპროცენტო განაკვეთი 14.21%-დან.ნომინალური და ეფექტური საპროცენტო განაკვეთი, წარმოადგენს საკრედიტო პროდუქტის მინიმალურ ოდენობას. რეალური მონაცემები დაზუსტდება, სესხის დამტკიცების მომენტში. ცხრილში მოცემული საპროცენტო განაკვეთი მიბმულია საჯარო ინდექსზე - TIBR1M

პროცენტი

წინასწარი შენატანი

ძირი

ყოველთვიური შესატანი4,112
სულ გადასახდელი825,382

შეარჩიე ნებისმიერი ღირებულების სახლი და მიიღე სრული დაფინანსება

დიაგრამა ასახავს საბურთალოზე გასაყიდი ბინების მ²-ის ფასის ცვლილების დინამიკას
მ² - ის ფასი