იყიდება 2 ოთახიანი ბინა ნაძალადევში



+ 42024.03.29-ის შემდეგ განცხადება ვადაგასულია ან წაშლილია
ID - 8100760
იყიდება 2 ოთახიანი ბინა ნაძალადევში
ც.დადიანის ქ. (ნაძალადევი)
28/02/24 - 11:35
საერთო ფართი
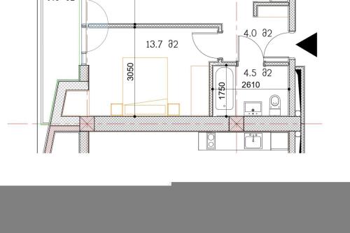
59.4 მ²ოთახი
2საძინებელი
1სართული
5/8მდგომარეობა
თეთრი კარკასისტატუსი
ახალი აშენებულიპროექტი
არასტანდარტულიდამატებითი ინფორმაცია
აივანი
სარდაფი
ლიფტი
ავეჯი
ჩაშენებული სამზარეულო
გარაჟი
ცენტ. გათბობა
ბოლო სართული
ბუნებრივი აირი
სათავსო
ფასი შეთანხმებით
Liza