იყიდება 2 ოთახიანი ბინა ნაძალადევში



+ 52025.06.11-ის შემდეგ განცხადება ვადაგასულია ან წაშლილია
ID - 32142774
იყიდება 2 ოთახიანი ბინა ნაძალადევში
ჭყონდიდელის ქ.
12/05/25 - 15:53
საერთო ფართი
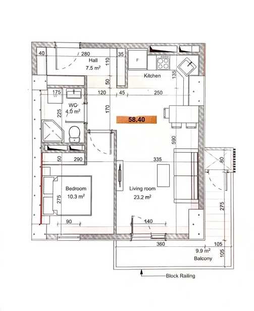
58.4 მ²ოთახი
2საძინებელი
1სართული
5/25ხედი ქუჩაზე
ნათელი
მყუდრო
სველი წერტილი
1მდგომარეობა
ახალი რემონტითსტატუსი
ახალი აშენებულიპროექტი
არასტანდარტულიდამატებითი ინფორმაცია
აივანი
სარდაფი
ლიფტი
ავეჯი
ჩაშენებული სამზარეულო
გარაჟი
ცენტ. გათბობა
ბოლო სართული
ბუნებრივი აირი
სათავსო
ფასი შეთანხმებით
ტატა ბარამიძე