ID - 8111610
ID - 8111610
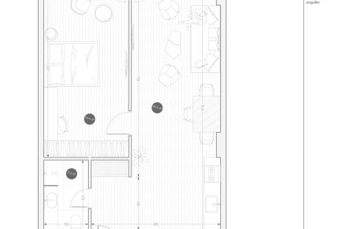
იყიდება 2 ოთახიანი ბინა ისანში
ბოჭორმის ქ.
21/03/24 - 16:27
საერთო ფართი
61.4 მ²ოთახი
2საძინებელი
1სართული
9/19აღწერა
ბინების მოცულობა იწყება 31 მ² -დან. მშენებლობა სრულდება 2026 წელს.ჩვენ გთავაზობთ გადახდის მოქნილ პირობებს,
მდგომარეობა
თეთრი კარკასისტატუსი
ახალი აშენებულიპროექტი
არასტანდარტულიდამატებითი ინფორმაცია
აივანი
სარდაფი
ლიფტი
ავეჯი
ჩაშენებული სამზარეულო
გარაჟი
ცენტ. გათბობა
ბოლო სართული
ბუნებრივი აირი
სათავსო
ფასი შეთანხმებით
Bacho



