იყიდება 2 ოთახიანი ბინა დიდუბეში

2023.12.25-ის შემდეგ განცხადება ვადაგასულია ან წაშლილია
ID - 7876331
იყიდება 2 ოთახიანი ბინა დიდუბეში
მირცხულავას ქ.
25/11/23 - 12:26
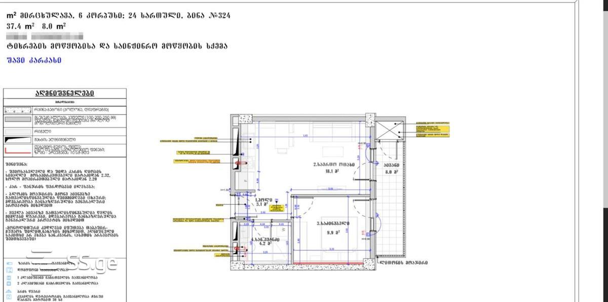
საერთო ფართი
4540 მ²ოთახი
2საძინებელი
1სართული
24/24აღწერა
იყიდება სასწრაფოდ!!!
m2 ის მშენებარე ბინა, ჩაბარება დაიწყება მალევე, არის ბოლოს (24) სართულზე, ულამაზესი ხედით, ჩაბარდებქა შავი კარკასის კონდიციით, ახალი საცხოვრებელი კომპლექსი "m² მირცხულავაზე" თბილისში, დიდუბის რაიონში, მირცხულავას ქუჩაზე შენდება.კომპლექსი განთავსებულია 25 365 კვ.მზე, მოიცავს 10 კორპუსს, გამწვანებულ შიდა ეზოს, სპორტულ მოედანსა და ავტოსადგომებს. პროექტი მდებარეობს 10 წუთის სავალზე მეტრო „დიდუბიდან“,
სველი წერტილი
1მდგომარეობა
შავი კარკასისტატუსი
ახალი აშენებულიპროექტი
არასტანდარტულიდამატებითი ინფორმაცია
აივანი
სარდაფი
ლიფტი
ავეჯი
ჩაშენებული სამზარეულო
გარაჟი
ცენტ. გათბობა
ბოლო სართული
ბუნებრივი აირი
სათავსო
ფასი შეთანხმებით
საბა დოლიძე