ss.ge logo
ss.ge logo

უძრავი ქონება

ქარ
ss.ge logo

უძრავი ქონება

ss.ge logo

უძრავი ქონება

ქარ
03 დეკ, 19:25
1,135
ID - 33860878

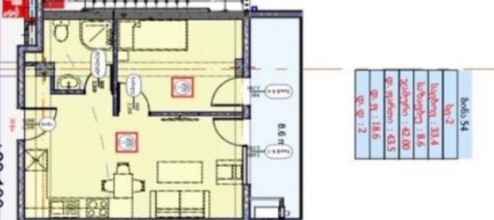
იყიდება 2 ოთახიანი ბინა დიდ დიღომში

კათალიკოს აბრაჰამ პირველის 1

51,000
$
1 მ² - 1215 $
იპოთეკა
1,510 თვეში
42m²

ფართი

2

ოთახი

1

საძინებელი

8/12

სართული

ფართი

42m²

ოთახი

2

საძინებელი

1

სართული

8/12

აღწერა

იყიდება ახალ აშენებულ კორპუსში ბინა !!!!!!! 42 კვადრატი !!!!!!! მწვანე კარკასი!!!!!!!

მეპატრონე მზად არის ობიექტი ვიდეო ზარის მეშვეობით დაგათვალიერებინოთ

დეტალური ინფორმაცია

სველი წერტილი

1

მდგომარეობა

მწვანე კარკასი

სტატუსი

ახალი აშენებული

პროექტი

არასტანდარტული

დამატებითი ინფორმაცია

აივანი

სარდაფი

ლიფტი

ავეჯი

ჩაშენებული სამზარეულო

გარაჟი

ცენტ. გათბობა

ბოლო სართული

ბუნებრივი აირი

სათავსო

სასწრაფოდ

სასწრაფოდ

საშუალოზე იაფი51,000 $
TOP შეთავაზება
საშუალოზე მაღალი
საშუალოზე იაფი
მაღალი ფასი
საშუალო ფასი
51,000 $
TOP შეთავაზება
საშუალოზე იაფი
საშუალო ფასი
საშუალოზე მაღალი
მაღალი ფასი
იპოთეკური კალკულატორი
ქონების ღირებულება138,000
წინასწარი შენატანი 20%
27,600
სესხის ვადა
15წელი

საპროცენტო განაკვეთი 12.9%-დან / ეფექტური საპროცენტო განაკვეთი 15.02%-დან.ნომინალური და ეფექტური საპროცენტო განაკვეთი, წარმოადგენს საკრედიტო პროდუქტის მინიმალურ ოდენობას. რეალური მონაცემები დაზუსტდება, სესხის დამტკიცების მომენტში. ცხრილში მოცემული საპროცენტო განაკვეთი მიბმულია საჯარო ინდექსზე - TIBR1M

პროცენტი

წინასწარი შენატანი

ძირი

ყოველთვიური შესატანი1,390
სულ გადასახდელი277,723

შეარჩიე ნებისმიერი ღირებულების სახლი და მიიღე სრული დაფინანსება

დიაგრამა ასახავს დიდ დიღომში გასაყიდი ბინების მ²-ის ფასის ცვლილების დინამიკას
მ² - ის ფასი

იყიდება 2 ოთახიანი ბინა დიდ დიღომში

42 მ²

საერთო ფართი

2

ოთახი

1

საძინებელი

8/12

სართული

საერთო ფართი

42 მ²

ოთახი

2

საძინებელი

1

სართული

8/12

აღწერა

იყიდება ახალ აშენებულ კორპუსში ბინა !!!!!!! 42 კვადრატი !!!!!!! მწვანე კარკასი!!!!!!!

ხედი ეზოზე
ხედი ქუჩაზე
ნათელი
მყუდრო

დეტალური ინფორმაცია

სველი წერტილი

1

მდგომარეობა

მწვანე კარკასი

სტატუსი

ახალი აშენებული

პროექტი

არასტანდარტული

მეპატრონე მზად არის ობიექტი ვიდეო ზარის მეშვეობით დაგათვალიერებინოთ

დამატებითი ინფორმაცია

აივანი

სარდაფი

ლიფტი

ავეჯი

ჩაშენებული სამზარეულო

გარაჟი

ცენტ. გათბობა

ბოლო სართული

ბუნებრივი აირი

სათავსო

ღირებულების შეფასება

შკალაზე ღირებულების პოზიცია განისაზღვრება საიტზე არსებული მსგავსი პარამეტრების მქონე ობიექტების ფასის მიხედვით.

საშუალოზე იაფი51,000 $
TOP შეთავაზება
საშუალოზე მაღალი
საშუალოზე იაფი
მაღალი ფასი
საშუალო ფასი
51,000 $
TOP შეთავაზება
საშუალოზე იაფი
საშუალო ფასი
საშუალოზე მაღალი
მაღალი ფასი
იპოთეკური კალკულატორი
ქონების ღირებულება138,000
წინასწარი შენატანი 20%
27,600
სესხის ვადა
15წელი

საპროცენტო განაკვეთი 12.9%-დან / ეფექტური საპროცენტო განაკვეთი 15.02%-დან.ნომინალური და ეფექტური საპროცენტო განაკვეთი, წარმოადგენს საკრედიტო პროდუქტის მინიმალურ ოდენობას. რეალური მონაცემები დაზუსტდება, სესხის დამტკიცების მომენტში. ცხრილში მოცემული საპროცენტო განაკვეთი მიბმულია საჯარო ინდექსზე - TIBR1M

პროცენტი

წინასწარი შენატანი

ძირი

ყოველთვიური შესატანი1,390
სულ გადასახდელი277,723

შეარჩიე ნებისმიერი ღირებულების სახლი და მიიღე სრული დაფინანსება

დიაგრამა ასახავს დიდ დიღომში გასაყიდი ბინების მ²-ის ფასის ცვლილების დინამიკას
მ² - ის ფასი