იყიდება 1 ოთახიანი ბინა ჩუღურეთში



+ 62025.10.05-ის შემდეგ განცხადება ვადაგასულია ან წაშლილია
ID - 33040549
იყიდება 1 ოთახიანი ბინა ჩუღურეთში
ი.ჯავახიშვილის ქ.
05/09/25 - 16:56
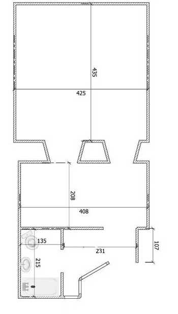
საერთო ფართი
34 მ²ოთახი
1საძინებელი
1სართული
1/2აღწერა
იყიდება ბინა ოქროს უბანში (ივანე ჯავახიშვილზე). 34 კვ.მ.
გარემონტებული, . სასიამოვნო ეზოში. პირველ სართულზეა. 7 წუთში მეტრომდე.
ბინას აქვს გაზი, სველი წერტილი სრულყოფილი და ჰიგიენური შხაპით. აბაზანაში გათვალისწინებულია ადგილი სარეცხი მანქანისთვის. ელექტროობა მოწყობილია თანამედროვე სტანდარტების შესაბამისად, რათა უზრუნველყოს მრავალი ტექნიკის გამოყენება. გამოყვანილია არხები ცენტრალური გათბობისთვის (რადიატორები). ამჟამად დამონტაჟებულია გაზის კოლონკა, რომელიც სურვილის შემთხვევაში შეიძლება შეიცვალოს ქვაბით. ჭერი ფრანგული სტილში ..
ფასი $54500
სველი წერტილი
1მდგომარეობა
ახალი რემონტითსტატუსი
ძველი აშენებულიპროექტი
არასტანდარტულიდამატებითი ინფორმაცია
აივანი
სარდაფი
ლიფტი
ავეჯი
ჩაშენებული სამზარეულო
გარაჟი
ცენტ. გათბობა
ბოლო სართული
ბუნებრივი აირი
სათავსო
ფასი შეთანხმებით
გიორგი