ss.ge logo
ss.ge logo

უძრავი ქონება

ქარ
ss.ge logo

უძრავი ქონება

ss.ge logo

უძრავი ქონება

ქარ
05 დეკ, 11:03
392
ID - 33806568

იყიდება 1 ოთახიანი ბინა ბათუმში

რ. ნიჟარაძის ქ. 20

34,900
$
1 მ² - 941 $
იპოთეკა
1,032 თვეში
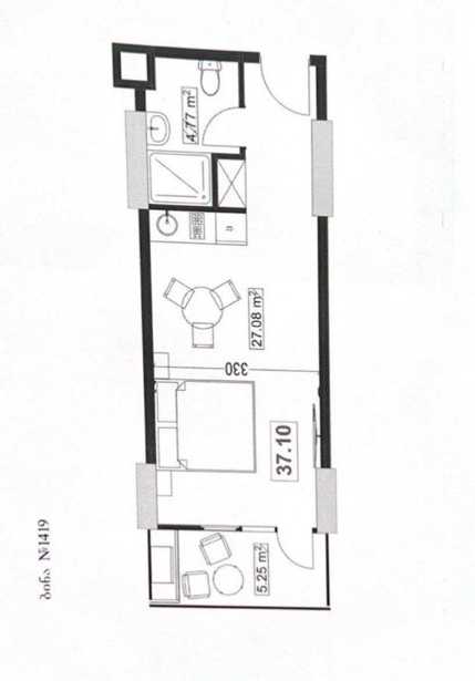
37.1m²

ფართი

1

ოთახი

1

საძინებელი

14/15

სართული

ფართი

37.1m²

ოთახი

1

საძინებელი

1

სართული

14/15

აღწერა

მეპატრონე მზად არის ობიექტი ვიდეო ზარის მეშვეობით დაგათვალიერებინოთ

დეტალური ინფორმაცია

სველი წერტილი

1

მდგომარეობა

შავი კარკასი

სტატუსი

ახალი აშენებული

პროექტი

არასტანდარტული

სამზარეულოს ფართი

15 მ²

დამატებითი ინფორმაცია

აივანი

სარდაფი

ლიფტი

ავეჯი

ჩაშენებული სამზარეულო

გარაჟი

ცენტ. გათბობა

ბოლო სართული

ბუნებრივი აირი

სათავსო

სასწრაფოდ

სასწრაფოდ

TOP შეთავაზება34,900 $
TOP შეთავაზება
საშუალოზე მაღალი
საშუალოზე იაფი
მაღალი ფასი
საშუალო ფასი
34,900 $
TOP შეთავაზება
საშუალოზე იაფი
საშუალო ფასი
საშუალოზე მაღალი
მაღალი ფასი
იპოთეკური კალკულატორი
ქონების ღირებულება94,300
წინასწარი შენატანი 20%
18,860
სესხის ვადა
15წელი

საპროცენტო განაკვეთი 12.9%-დან / ეფექტური საპროცენტო განაკვეთი 15.02%-დან.ნომინალური და ეფექტური საპროცენტო განაკვეთი, წარმოადგენს საკრედიტო პროდუქტის მინიმალურ ოდენობას. რეალური მონაცემები დაზუსტდება, სესხის დამტკიცების მომენტში. ცხრილში მოცემული საპროცენტო განაკვეთი მიბმულია საჯარო ინდექსზე - TIBR1M

პროცენტი

წინასწარი შენატანი

ძირი

ყოველთვიური შესატანი950
სულ გადასახდელი189,777

შეარჩიე ნებისმიერი ღირებულების სახლი და მიიღე სრული დაფინანსება

დიაგრამა ასახავს აეროპორტის უბანში გასაყიდი ბინების მ²-ის ფასის ცვლილების დინამიკას
მ² - ის ფასი

იყიდება 1 ოთახიანი ბინა ბათუმში

37.1 მ²

საერთო ფართი

1

ოთახი

1

საძინებელი

14/15

სართული

საერთო ფართი

37.1 მ²

ოთახი

1

საძინებელი

1

სართული

14/15

აღწერა

ხედი ქუჩაზე
ნათელი
მყუდრო

დეტალური ინფორმაცია

სველი წერტილი

1

მდგომარეობა

შავი კარკასი

სტატუსი

ახალი აშენებული

პროექტი

არასტანდარტული

სამზარეულოს ფართი

15 მ²

მეპატრონე მზად არის ობიექტი ვიდეო ზარის მეშვეობით დაგათვალიერებინოთ

დამატებითი ინფორმაცია

აივანი

სარდაფი

ლიფტი

ავეჯი

ჩაშენებული სამზარეულო

გარაჟი

ცენტ. გათბობა

ბოლო სართული

ბუნებრივი აირი

სათავსო

ღირებულების შეფასება

შკალაზე ღირებულების პოზიცია განისაზღვრება საიტზე არსებული მსგავსი პარამეტრების მქონე ობიექტების ფასის მიხედვით.

TOP შეთავაზება34,900 $
TOP შეთავაზება
საშუალოზე მაღალი
საშუალოზე იაფი
მაღალი ფასი
საშუალო ფასი
34,900 $
TOP შეთავაზება
საშუალოზე იაფი
საშუალო ფასი
საშუალოზე მაღალი
მაღალი ფასი
იპოთეკური კალკულატორი
ქონების ღირებულება94,300
წინასწარი შენატანი 20%
18,860
სესხის ვადა
15წელი

საპროცენტო განაკვეთი 12.9%-დან / ეფექტური საპროცენტო განაკვეთი 15.02%-დან.ნომინალური და ეფექტური საპროცენტო განაკვეთი, წარმოადგენს საკრედიტო პროდუქტის მინიმალურ ოდენობას. რეალური მონაცემები დაზუსტდება, სესხის დამტკიცების მომენტში. ცხრილში მოცემული საპროცენტო განაკვეთი მიბმულია საჯარო ინდექსზე - TIBR1M

პროცენტი

წინასწარი შენატანი

ძირი

ყოველთვიური შესატანი950
სულ გადასახდელი189,777

შეარჩიე ნებისმიერი ღირებულების სახლი და მიიღე სრული დაფინანსება

დიაგრამა ასახავს აეროპორტის უბანში გასაყიდი ბინების მ²-ის ფასის ცვლილების დინამიკას
მ² - ის ფასი