ss.ge logo
ss.ge logo

უძრავი ქონება

ქარ
ss.ge logo

უძრავი ქონება

ss.ge logo

უძრავი ქონება

ქარ
02 დეკ, 23:39
86
ID - 33817138

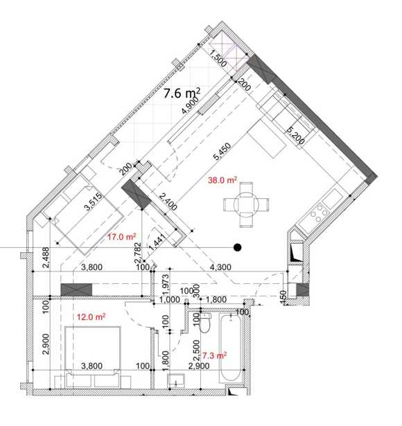
იყიდება 3 ოთახიანი ბინა დიღმის მასივში

ბოხუას ქ. 10

103,000
$
1 მ² - 1257 $
იპოთეკა
3,042 თვეში
82m²

ფართი

3

ოთახი

2

საძინებელი

7/18

სართული

ფართი

82m²

ოთახი

3

საძინებელი

2

სართული

7/18

აღწერა

ვარ მესაკუთრე. გთხოვთ სააგენტოები ნუ დამიკავშირდებით. ყველაზე გამწვანებულ, მშვიდ და სტრატეგიულ ადგილას — დიღმის მასივში, იყიდება 82 კვ.მ კუთხის ბინა თეთრი კარკასის მდგომარეობაში. 🏗️ კორპუსის მშენებლობა დასრულებულია, რემონტის დაწყება კი შესაძლებელი იქნება უკვე ნოემბრიდან. ბინა მდებარეობს მე-7 სართულზე, კორპუსის ყველაზე ნათელ მხარეს — გამწვანებული ხედებითა და სტადიონებით. ხედის გადაფარვის საფრთხე არ არსებობს, რაც განსაკუთრებულად მნიშვნელოვანია ამ ლოკაციაში. ბინა ერთ-ერთი ყველაზე მოთხოვნადი პროექტის ნაწილია: • 2 დიდი და ნათელი საძინებელი ვიტრაჟებით • დიდი სველი წერტილი • ფუნქციური სამზარეულო • ვიტრაჟული და ნათელი მისაღები აივნით ბინაში უკვე ამოყვანილია ტიხრები დიზაინერთან შეთანხმებული პროექტით, ჩასმულია მეტალოპლასტმასის ვიტრაჟები. კომპანია ბინას აბარებს თეთრი კარკასით — მოპირკეთებული აივნით, გაყვანილი კომუნიკაციებით, გათბობის მილებითა და მოჭიმული იატაკით. 💰 ფასი იდეალურია — ამ ადგილმდებარეობისთვის, მდგომარეობისა და პროექტისთვის 📍 თუ გინდა ბინა ქალაქის ახლოს, მაგრამ სიჩუმესა და სიმწვანეში !

დეტალური ინფორმაცია

სველი წერტილი

1

მდგომარეობა

თეთრი კარკასი

სტატუსი

ახალი აშენებული

პროექტი

არასტანდარტული

დამატებითი ინფორმაცია

აივანი

სარდაფი

ლიფტი

ავეჯი

ჩაშენებული სამზარეულო

გარაჟი

ცენტ. გათბობა

ბოლო სართული

ბუნებრივი აირი

სათავსო

სასწრაფოდ

სასწრაფოდ

ადგილმდებარეობა

ახლომდებარე ობიექტები

მარკეტი
სკოლა
აფთიაქი
საშუალოზე იაფი103,000 $
TOP შეთავაზება
საშუალოზე მაღალი
საშუალოზე იაფი
მაღალი ფასი
საშუალო ფასი
103,000 $
TOP შეთავაზება
საშუალოზე იაფი
საშუალო ფასი
საშუალოზე მაღალი
მაღალი ფასი
იპოთეკური კალკულატორი
ქონების ღირებულება278,000
წინასწარი შენატანი 20%
55,600
სესხის ვადა
15წელი

საპროცენტო განაკვეთი 12.9%-დან / ეფექტური საპროცენტო განაკვეთი 15.02%-დან.ნომინალური და ეფექტური საპროცენტო განაკვეთი, წარმოადგენს საკრედიტო პროდუქტის მინიმალურ ოდენობას. რეალური მონაცემები დაზუსტდება, სესხის დამტკიცების მომენტში. ცხრილში მოცემული საპროცენტო განაკვეთი მიბმულია საჯარო ინდექსზე - TIBR1M

პროცენტი

წინასწარი შენატანი

ძირი

ყოველთვიური შესატანი2,799
სულ გადასახდელი559,471

შეარჩიე ნებისმიერი ღირებულების სახლი და მიიღე სრული დაფინანსება

დიაგრამა ასახავს დიღმის მასივში გასაყიდი ბინების მ²-ის ფასის ცვლილების დინამიკას
მ² - ის ფასი

იყიდება 3 ოთახიანი ბინა დიღმის მასივში

82 მ²

საერთო ფართი

3

ოთახი

2

საძინებელი

7/18

სართული

საერთო ფართი

82 მ²

ოთახი

3

საძინებელი

2

სართული

7/18

აღწერა

ვარ მესაკუთრე. გთხოვთ სააგენტოები ნუ დამიკავშირდებით. ყველაზე გამწვანებულ, მშვიდ და სტრატეგიულ ადგილას — დიღმის მასივში, იყიდება 82 კვ.მ კუთხის ბინა თეთრი კარკასის მდგომარეობაში. 🏗️ კორპუსის მშენებლობა დასრულებულია, რემონტის დაწყება კი შესაძლებელი იქნება უკვე ნოემბრიდან. ბინა მდებარეობს მე-7 სართულზე, კორპუსის ყველაზე ნათელ მხარეს — გამწვანებული ხედებითა და სტადიონებით. ხედის გადაფარვის საფრთხე არ არსებობს, რაც განსაკუთრებულად მნიშვნელოვანია ამ ლოკაციაში. ბინა ერთ-ერთი ყველაზე მოთხოვნადი პროექტის ნაწილია: • 2 დიდი და ნათელი საძინებელი ვიტრაჟებით • დიდი სველი წერტილი • ფუნქციური სამზარეულო • ვიტრაჟული და ნათელი მისაღები აივნით ბინაში უკვე ამოყვანილია ტიხრები დიზაინერთან შეთანხმებული პროექტით, ჩასმულია მეტალოპლასტმასის ვიტრაჟები. კომპანია ბინას აბარებს თეთრი კარკასით — მოპირკეთებული აივნით, გაყვანილი კომუნიკაციებით, გათბობის მილებითა და მოჭიმული იატაკით. 💰 ფასი იდეალურია — ამ ადგილმდებარეობისთვის, მდგომარეობისა და პროექტისთვის 📍 თუ გინდა ბინა ქალაქის ახლოს, მაგრამ სიჩუმესა და სიმწვანეში !

ხედი ეზოზე
ხედი ქუჩაზე
ნათელი
მყუდრო

დეტალური ინფორმაცია

სველი წერტილი

1

მდგომარეობა

თეთრი კარკასი

სტატუსი

ახალი აშენებული

პროექტი

არასტანდარტული

დამატებითი ინფორმაცია

აივანი

სარდაფი

ლიფტი

ავეჯი

ჩაშენებული სამზარეულო

გარაჟი

ცენტ. გათბობა

ბოლო სართული

ბუნებრივი აირი

სათავსო

მარკეტი
სკოლა
აფთიაქი

ღირებულების შეფასება

შკალაზე ღირებულების პოზიცია განისაზღვრება საიტზე არსებული მსგავსი პარამეტრების მქონე ობიექტების ფასის მიხედვით.

საშუალოზე იაფი103,000 $
TOP შეთავაზება
საშუალოზე მაღალი
საშუალოზე იაფი
მაღალი ფასი
საშუალო ფასი
103,000 $
TOP შეთავაზება
საშუალოზე იაფი
საშუალო ფასი
საშუალოზე მაღალი
მაღალი ფასი
იპოთეკური კალკულატორი
ქონების ღირებულება278,000
წინასწარი შენატანი 20%
55,600
სესხის ვადა
15წელი

საპროცენტო განაკვეთი 12.9%-დან / ეფექტური საპროცენტო განაკვეთი 15.02%-დან.ნომინალური და ეფექტური საპროცენტო განაკვეთი, წარმოადგენს საკრედიტო პროდუქტის მინიმალურ ოდენობას. რეალური მონაცემები დაზუსტდება, სესხის დამტკიცების მომენტში. ცხრილში მოცემული საპროცენტო განაკვეთი მიბმულია საჯარო ინდექსზე - TIBR1M

პროცენტი

წინასწარი შენატანი

ძირი

ყოველთვიური შესატანი2,799
სულ გადასახდელი559,471

შეარჩიე ნებისმიერი ღირებულების სახლი და მიიღე სრული დაფინანსება

დიაგრამა ასახავს დიღმის მასივში გასაყიდი ბინების მ²-ის ფასის ცვლილების დინამიკას
მ² - ის ფასი