ID - 32172555
იყიდება 4 ოთახიანი ბინა საბურთალოზე



+ 72025.06.13-ის შემდეგ განცხადება ვადაგასულია ან წაშლილია
ID - 32172555
იყიდება 4 ოთახიანი ბინა საბურთალოზე
შარტავას ქ.
14/05/25 - 18:07
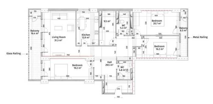
საერთო ფართი
185 მ²ოთახი
4საძინებელი
3სართული
37/37აღწერა
იდეალურ ფასად ! დეველოპერზე იაფად ! შარტავაზე თეთრი კვადრატის კომპლექსში ბოლო 37 სართულზე იყიდება ბინა ! 3 საძინებლით და 2 სველი წერტილით . სიგრძის აივანი რომელზეც გამოდის ყველა ოთახიდან . ულამაზესი ხედებით. დეტალებზე დამიკავშირდით !
ხედი ეზოზე
ხედი ქუჩაზე
ნათელი
მყუდრო
სველი წერტილი
2მდგომარეობა
მწვანე კარკასისტატუსი
ახალი აშენებულიპროექტი
არასტანდარტულიდამატებითი ინფორმაცია
აივანი
სარდაფი
ლიფტი
ავეჯი
ჩაშენებული სამზარეულო
გარაჟი
ცენტ. გათბობა
ბოლო სართული
ბუნებრივი აირი
სათავსო
ფასი შეთანხმებით
Nika