16 აპრ, 17:19
113
ID - 35072970იყიდება კომერციული ფართი დიდ დიღომში
ვეფხისტყაოსნის ქ.
3,800,000
₾$
1 m2 - 1289 $
98,788₾ -a-month
93,055₾ -a-month
2950m²
space
space
2950m²description
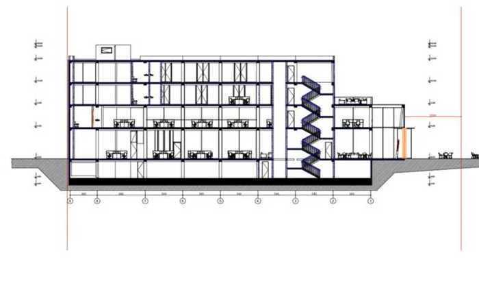
For sale is a new, modern architectural multi-functional commercial complex, with a building area of 2950 sq.m and a yard area of 1500 sq.m, located in a strategic location — in the Dighomi massif, on Vepkhistkaosni Street (near the Agmashenebeli Avenue). The building is ideal for a showroom, hypermarket, clinic, or head office. Main Features: • Address: Tbilisi, Agmashenebeli Avenue, Vepkhistkaosni St. #2. • Total area: 3,258.4 sq.m. • Number of floors: 4 commercial floors + underground parking. • Building height: 16 meters. Space distribution: • 1st and 2nd floors: approximately 750 + 475 sq.m — ideal for retail spaces (glazed facade with views of the avenue). • 3rd and 4th floors: 480 + 410 sq.m area — for exhibition halls, restaurants, or VIP offices (with beautiful terraces and views). • Mezzanines: additional commercial spaces on the floors. • Basement (-1): large secured parking for 35 cars and 2 auxiliary storages (total 565.6 sq.m). Technical advantages: • Glazed facade: high visibility from the main highway. • Security: the building is equipped with the latest fire safety systems (sprinklers, smoke detectors, fire stairs). • Comfort: modern elevators, restrooms on all floors, and organized ventilation. • Strategic location: surrounded by large shopping centers and car dealerships. For more information, please contact us: 594641122
detailed-information
status
ახალი აშენებული
additional-information
AII_airConditioning
AII_balcony
AII_basement
AII_cableTelevision
AII_fridge
AII_furniture
AII_withBuiltInKitchen
AII_garage
AII_glazedWindows
AII_heating
AII_internet
AII_ironDoor
AII_naturalGas
AII_securityAlarm
AII_storage
AII_telephone
AII_tv
urgent
urgent
loan-calculator
down-payment 20%
2,046,800₾
loan-term
15year
loan-interest-info
interest
down-payment
base
monthly-payment98,788 ₾
total-payment19,828,550 ₾
loan-calc-bottom-btn-text
113
16 აპრ 26, 17:19
ID - 35072970
იყიდება კომერციული ფართი დიდ დიღომში
2950 m2
total-area
total-area
2950 m2description
For sale is a new, modern architectural multi-functional commercial complex, with a building area of 2950 sq.m and a yard area of 1500 sq.m, located in a strategic location — in the Dighomi massif, on Vepkhistkaosni Street (near the Agmashenebeli Avenue). The building is ideal for a showroom, hypermarket, clinic, or head office. Main Features: • Address: Tbilisi, Agmashenebeli Avenue, Vepkhistkaosni St. #2. • Total area: 3,258.4 sq.m. • Number of floors: 4 commercial floors + underground parking. • Building height: 16 meters. Space distribution: • 1st and 2nd floors: approximately 750 + 475 sq.m — ideal for retail spaces (glazed facade with views of the avenue). • 3rd and 4th floors: 480 + 410 sq.m area — for exhibition halls, restaurants, or VIP offices (with beautiful terraces and views). • Mezzanines: additional commercial spaces on the floors. • Basement (-1): large secured parking for 35 cars and 2 auxiliary storages (total 565.6 sq.m). Technical advantages: • Glazed facade: high visibility from the main highway. • Security: the building is equipped with the latest fire safety systems (sprinklers, smoke detectors, fire stairs). • Comfort: modern elevators, restrooms on all floors, and organized ventilation. • Strategic location: surrounded by large shopping centers and car dealerships. For more information, please contact us: 594641122
detailed-information
status
ახალი აშენებული
additional-information
AII_airConditioning
AII_balcony
AII_basement
AII_cableTelevision
AII_fridge
AII_furniture
AII_withBuiltInKitchen
AII_garage
AII_glazedWindows
AII_heating
AII_internet
AII_ironDoor
AII_naturalGas
AII_securityAlarm
AII_storage
AII_telephone
AII_tv
loan-calculator
down-payment 20%
2,046,800₾
loan-term
15year
loan-interest-info
interest
down-payment
base
monthly-payment98,788 ₾
total-payment19,828,550 ₾
loan-calc-bottom-btn-text
ID - 35072970
იყიდება კომერციული ფართი დიდ დიღომში
ვეფხისტყაოსნის ქ.
16/04/26 - 17:19
total-area
2950 m2description
status
ახალი აშენებულიadditional-information
AII_airConditioning
AII_balcony
AII_basement
AII_cableTelevision
AII_fridge
AII_furniture
AII_withBuiltInKitchen
AII_garage
AII_glazedWindows
AII_heating
AII_internet
AII_ironDoor
AII_naturalGas
AII_securityAlarm
AII_storage
AII_telephone
AII_tv
3,800,000 $
1 m2 - 1289 $