24 Nov, 13:07
107
ID - 33757865იყიდება კომერციული ფართი ბათუმში
ა. პუშკინის ქუჩა 182
200,000
₾$
1 m2 - 1011 $
5,909 ₾-a-month
198m²
space
space
198m²description
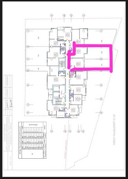
Commercial space of 198 m² for sale in the Guaranty Dream House complex, Batumi. Address: 182 Alexander Pushkin St., 3rd floor. The first two floors of the complex are allocated for commercial spaces. The total area of the object is 198 m², additionally featuring a large terrace. The space is presented in "black frame" condition, giving you the opportunity to start repairs and planning immediately upon purchase. This is a unique offer in one of the best locations in Batumi. The object is ideal for any type of business: cafe, office, beauty salon, medical center, and others. The flexible format also allows you to use it for residential as well as commercial purposes — as you wish. The location is particularly advantageous due to its infrastructure and proximity to significant facilities: Directly opposite is a Carrefour supermarket. Close by is the UEFA stadium. There is a high pedestrian and vehicle flow, which increases the profitability and advertising potential of the object. The selling price is $200,000, which includes $1,000 per m² with a promotional discount. This offer is one of the best investments in a high-yielding location in Batumi. For all inquiries and to arrange a viewing, please 📞 Phone/WhatsApp: +995 555 48 59 29
detailed-information
condition
შავი კარკასი
status
ახალი აშენებული
additional-information
AII_airConditioning
AII_balcony
AII_basement
AII_cableTelevision
AII_fridge
AII_furniture
AII_withBuiltInKitchen
AII_garage
AII_glazedWindows
AII_heating
AII_internet
AII_ironDoor
AII_naturalGas
AII_securityAlarm
AII_storage
AII_telephone
AII_tv
urgent
urgent
position
nearby-objects
supermarket
school
pharmacy
park
loan-calculator
property-value540,000 ₾down-payment 20%
108,000₾
loan-term
15year
loan-interest-info
interest
down-payment
base
monthly-payment5,437 ₾
total-payment1,086,741 ₾
loan-calc-bottom-btn-text
107
24 Nov 25, 13:07
ID - 33757865
იყიდება კომერციული ფართი ბათუმში
198 m2
total-area
total-area
198 m2description
Commercial space of 198 m² for sale in the Guaranty Dream House complex, Batumi. Address: 182 Alexander Pushkin St., 3rd floor. The first two floors of the complex are allocated for commercial spaces. The total area of the object is 198 m², additionally featuring a large terrace. The space is presented in "black frame" condition, giving you the opportunity to start repairs and planning immediately upon purchase. This is a unique offer in one of the best locations in Batumi. The object is ideal for any type of business: cafe, office, beauty salon, medical center, and others. The flexible format also allows you to use it for residential as well as commercial purposes — as you wish. The location is particularly advantageous due to its infrastructure and proximity to significant facilities: Directly opposite is a Carrefour supermarket. Close by is the UEFA stadium. There is a high pedestrian and vehicle flow, which increases the profitability and advertising potential of the object. The selling price is $200,000, which includes $1,000 per m² with a promotional discount. This offer is one of the best investments in a high-yielding location in Batumi. For all inquiries and to arrange a viewing, please 📞 Phone/WhatsApp: +995 555 48 59 29
detailed-information
condition
შავი კარკასი
status
ახალი აშენებული
additional-information
AII_airConditioning
AII_balcony
AII_basement
AII_cableTelevision
AII_fridge
AII_furniture
AII_withBuiltInKitchen
AII_garage
AII_glazedWindows
AII_heating
AII_internet
AII_ironDoor
AII_naturalGas
AII_securityAlarm
AII_storage
AII_telephone
AII_tv
supermarket
school
park
pharmacy
loan-calculator
property-value540,000 ₾down-payment 20%
108,000₾
loan-term
15year
loan-interest-info
interest
down-payment
base
monthly-payment5,437 ₾
total-payment1,086,741 ₾
loan-calc-bottom-btn-text
ID - 33757865
იყიდება კომერციული ფართი ბათუმში
ა. პუშკინის ქუჩა 182
24/11/25 - 13:07
total-area
198 m2description
condition
შავი კარკასიstatus
ახალი აშენებულიadditional-information
AII_airConditioning
AII_balcony
AII_basement
AII_cableTelevision
AII_fridge
AII_furniture
AII_withBuiltInKitchen
AII_garage
AII_glazedWindows
AII_heating
AII_internet
AII_ironDoor
AII_naturalGas
AII_securityAlarm
AII_storage
AII_telephone
AII_tv
200,000 $
1 m2 - 1011 $