21 апр., 21:50
84
ID - 35218809იყიდება 5 ოთახიანი კერძო სახლი გრიგოლეთში
გრიგოლეთი
340,000
₾$
1 m2 - 2616 $
8,842₾ -a-month
8,329₾ -a-month
130m²
space
90m²
yard-area
5
room-s
3
bedroom
space
130m²yard-area
90m²room-s
5bedroom
3description
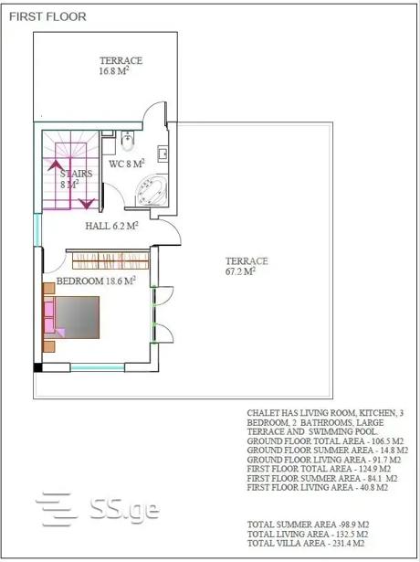
გრიგოლეთში, შავი ზღვის სანაპიროსთან ახლოს, იქ სადაც ბუნება და კომფორტი ჰარმონიულად ერთიანდება, შენდება უმაღლესი ხარისხის საცხოვრებელი კომპლექსი — ახალი სტანდარტი პრემიუმ ცხოვრებისა და ინვესტიციისთვის.პროექტი მდებარეობს გრიგოლეთიში — კურორტზე, რომელიც ცნობილია უნიკალური კლიმატით, სუფთა ჰაერითა და ზღვის განსაკუთრებული ენერგიით. ეს არის სივრცე მათთვის, ვინც ეძებს სიმშვიდეს, უსაფრთხოებას და გამორჩეულ ხარისხს.კომპლექსი აერთიანებს 1, 2 და 3სართულიან ვილებს, თითოეული ინდივიდუალური არქიტექტურითა და თანამედროვე დიზაინით. ვილები აღჭურვილია კერძო აუზებით და მაქსიმალურად მორგებულია როგორც მუდმივ საცხოვრებლად, ასევე დასასვენებლად.ყველა ვილა ბარდება:უმაღლესი ხარისხის რემონტითსრულად მოწყობილი ინტერიერითპრემიუმ კლასის ავეჯითთანამედროვე ტექნიკითმფლობელს მხოლოდ ერთი რამ რჩება — ისიამოვნოს ცხოვრებით.კომპლექსის ინფრასტრუქტურა ქმნის სრულფასოვან საკურორტო გარემოს:მრავალფეროვანი რესტორანიკეთილმოწყობილი რეკრეაციული და გამაჯანსაღებელი სივრცეებიაკვაპარკიდაცული და გამწვანებული ტერიტორიაუსაფრთხოების 24/7 სისტემაპროექტი იდეალურია როგორც მაღალი სტანდარტის ცხოვრების მსურველებისთვის, ასევე საინვესტიციო თვალსაზრისით — მზარდ და პერსპექტიულ ზღვისპირა ზონაში.ვილაში დაგხვდებათ :პირველი სართული:2 საძინებელი1 სააბაზანო1 მისაღები ოთახი1 სამზარეულოტერასასახურავი:
detailed-information
condition
გარემონტებული
status
მშენებარე
project
არასტანდარტული
additional-information
AII_balcony
AII_basement
AII_drinkingWater
AII_furniture
AII_withBuiltInKitchen
AII_garage
AII_heating
AII_naturalGas
AII_storage
AII_withPool
urgent
urgent
loan-calculator
down-payment 20%
183,200₾
loan-term
15year
loan-interest-info
interest
down-payment
base
monthly-payment8,842 ₾
total-payment1,774,766 ₾
loan-calc-bottom-btn-text
find-out-price-dynamics Გრიგოლეთიunit-avg-price-subtitle-prefix unit-avg-price-realestate-type-4 unit-avg-price-dealtype-4 in Გრიგოლეთი
unit-avg-price-chart-title
84
21 апр. 26, 21:50
ID - 35218809
იყიდება 5 ოთახიანი კერძო სახლი გრიგოლეთში
130 m2
house-area
90 m2
yard-area
5
room-s
3
bedroom
house-area
130 m2yard-area
90 m2room-s
5bedroom
3description
გრიგოლეთში, შავი ზღვის სანაპიროსთან ახლოს, იქ სადაც ბუნება და კომფორტი ჰარმონიულად ერთიანდება, შენდება უმაღლესი ხარისხის საცხოვრებელი კომპლექსი — ახალი სტანდარტი პრემიუმ ცხოვრებისა და ინვესტიციისთვის.პროექტი მდებარეობს გრიგოლეთიში — კურორტზე, რომელიც ცნობილია უნიკალური კლიმატით, სუფთა ჰაერითა და ზღვის განსაკუთრებული ენერგიით. ეს არის სივრცე მათთვის, ვინც ეძებს სიმშვიდეს, უსაფრთხოებას და გამორჩეულ ხარისხს.კომპლექსი აერთიანებს 1, 2 და 3სართულიან ვილებს, თითოეული ინდივიდუალური არქიტექტურითა და თანამედროვე დიზაინით. ვილები აღჭურვილია კერძო აუზებით და მაქსიმალურად მორგებულია როგორც მუდმივ საცხოვრებლად, ასევე დასასვენებლად.ყველა ვილა ბარდება:უმაღლესი ხარისხის რემონტითსრულად მოწყობილი ინტერიერითპრემიუმ კლასის ავეჯითთანამედროვე ტექნიკითმფლობელს მხოლოდ ერთი რამ რჩება — ისიამოვნოს ცხოვრებით.კომპლექსის ინფრასტრუქტურა ქმნის სრულფასოვან საკურორტო გარემოს:მრავალფეროვანი რესტორანიკეთილმოწყობილი რეკრეაციული და გამაჯანსაღებელი სივრცეებიაკვაპარკიდაცული და გამწვანებული ტერიტორიაუსაფრთხოების 24/7 სისტემაპროექტი იდეალურია როგორც მაღალი სტანდარტის ცხოვრების მსურველებისთვის, ასევე საინვესტიციო თვალსაზრისით — მზარდ და პერსპექტიულ ზღვისპირა ზონაში.ვილაში დაგხვდებათ :პირველი სართული:2 საძინებელი1 სააბაზანო1 მისაღები ოთახი1 სამზარეულოტერასასახურავი:
detailed-information
condition
გარემონტებული
status
მშენებარე
project
არასტანდარტული
additional-information
AII_balcony
AII_basement
AII_drinkingWater
AII_furniture
AII_withBuiltInKitchen
AII_garage
AII_heating
AII_naturalGas
AII_storage
AII_withPool
loan-calculator
down-payment 20%
183,200₾
loan-term
15year
loan-interest-info
interest
down-payment
base
monthly-payment8,842 ₾
total-payment1,774,766 ₾
loan-calc-bottom-btn-text
find-out-price-dynamics Გრიგოლეთიunit-avg-price-subtitle-prefix unit-avg-price-realestate-type-4 unit-avg-price-dealtype-4 in Გრიგოლეთი
unit-avg-price-chart-title
ID - 35218809
იყიდება 5 ოთახიანი კერძო სახლი გრიგოლეთში
გრიგოლეთი
21/04/26 - 21:50
house-area
130 m2RealEstateType-3
LandTypes.6.nameroom-s
5bedroom
3description
condition
გარემონტებულიstatus
მშენებარეproject
არასტანდარტულიadditional-information
AII_balcony
AII_basement
AII_drinkingWater
AII_furniture
AII_withBuiltInKitchen
AII_garage
AII_heating
AII_naturalGas
AII_storage
AII_withPool
340,000 $
1 m2 - 2616 $