ID - 31838392
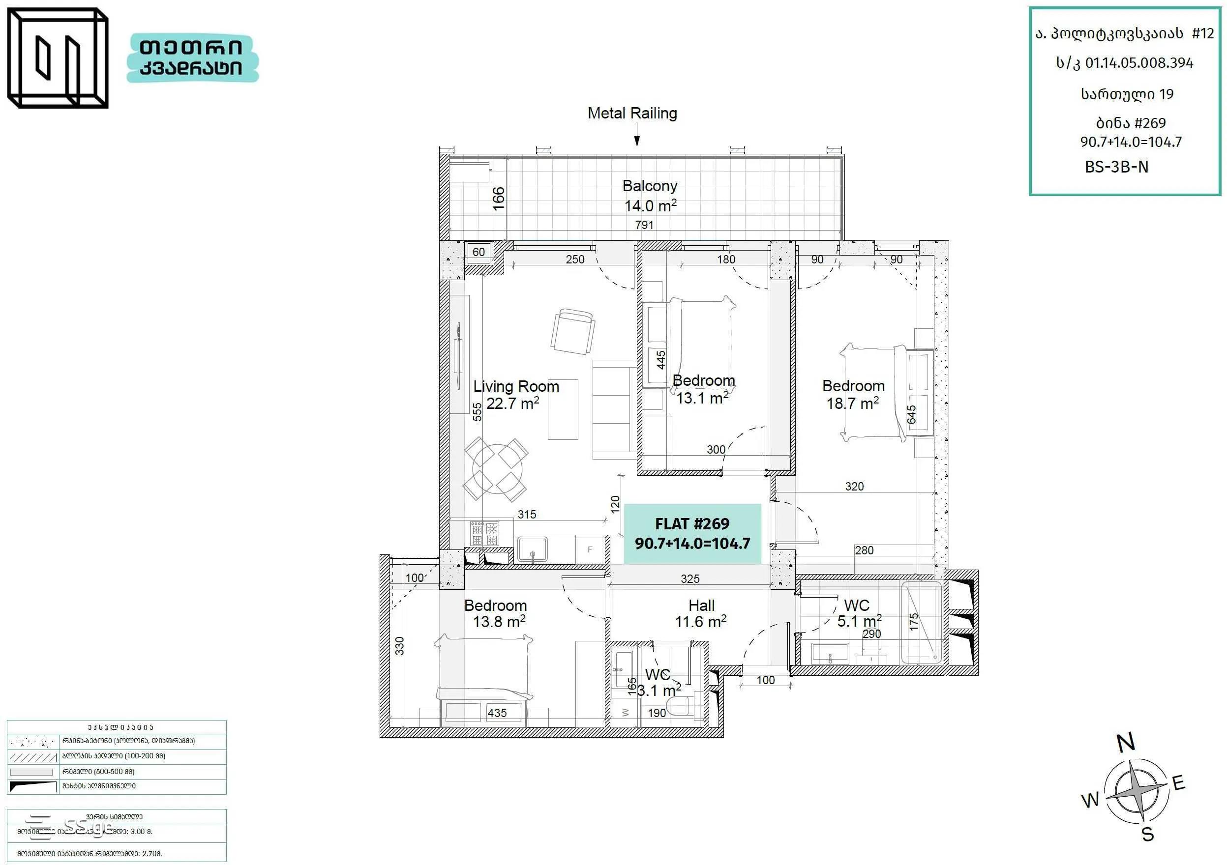
იყიდება 4 ოთახიანი ბინა საბურთალოზე
პოლიტკოვსკაიას ქ. (ჯიქიას ქ.)
04/04/25 - 22:28
total-area
10.80 m2room-s
4bedroom
3floor
19/19description
condition
თეთრი კარკასიstatus
ახალი აშენებულიproject
არასტანდარტულიadditional-information
AII_balcony
AII_basement
AII_elevator
AII_furniture
AII_withBuiltInKitchen
AII_garage
AII_heating
AII_lastFloor
AII_naturalGas
AII_storage
upon-agreement
MAKA


