19 იან, 19:00
3,685
ID - 32617931იყიდება 3 ოთახიანი ბინა ვეძისში
ისაკაძის ქ. 37
|metroStations.medical_uni
158,000
₾$
1 m2 - 1698 $
4,505 ₾-a-month
93.1m²
space
3
room-s
2
bedroom
2/4
floor
space
93.1m²room-s
3bedroom
2floor
2/4description
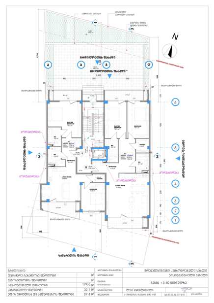
The residential building is 4 stories high and consists of 6 apartments, of which two have been sold. There are 4 apartments left. There is no mortgage on the construction, the subdivision has been made, and you can see a clean extract from the registry. The price per square meter for the apartments on the first residential floor is $1700. The price per square meter for the apartments on the second residential floor is $1800, while the price for the third residential floor is $1900. The price for the parking space is $10,000. The garage is located at a level of 0.00. The height of the first floor from street level is 3 meters. The building is delivered in a white frame condition. The facade will use Austrian brand Fundermax panels. All communications will be installed according to the plan, only the electrical wiring will be brought into the apartment without boxing. A heat-efficient Itong block is used on the external perimeter, to which an additional 5 cm EPS will be added. The roof will be equipped with 15 cm PENOPLEX, while the parking covering slab will have an additional 10 cm PENOPLEX for extra thermal efficiency. The profiles of the windows will be made of high-strength 64-aluminum. The inner courtyard and free spaces from the street entrance will be landscaped with Italian seedlings and shrubs. The construction completion time is 4-5 months.
detailed-information
wet-spots
2
condition
თეთრი კარკასი
status
მშენებარე
project
არასტანდარტული
additional-information
AII_balcony
AII_basement
AII_elevator
AII_furniture
AII_withBuiltInKitchen
AII_garage
AII_heating
AII_lastFloor
AII_naturalGas
AII_storage
urgent
urgent
position
nearby-objects
supermarket
school
pharmacy
loan-calculator
property-value427,000 ₾down-payment 20%
85,400₾
loan-term
15year
loan-interest-info
interest
down-payment
base
monthly-payment4,122 ₾
total-payment827,320 ₾
loan-calc-bottom-btn-text
find-out-price-dynamics ვეძისშიunit-avg-price-subtitle-prefix unit-avg-price-realestate-type-5 unit-avg-price-dealtype-4 in ვეძისში
unit-avg-price-chart-title
3,685
19 იან 26, 19:00
ID - 32617931
იყიდება 3 ოთახიანი ბინა ვეძისში
93.1 m2
total-area
3
room-s
2
bedroom
2/4
floor
total-area
93.1 m2room-s
3bedroom
2floor
2/4description
The residential building is 4 stories high and consists of 6 apartments, of which two have been sold. There are 4 apartments left. There is no mortgage on the construction, the subdivision has been made, and you can see a clean extract from the registry. The price per square meter for the apartments on the first residential floor is $1700. The price per square meter for the apartments on the second residential floor is $1800, while the price for the third residential floor is $1900. The price for the parking space is $10,000. The garage is located at a level of 0.00. The height of the first floor from street level is 3 meters. The building is delivered in a white frame condition. The facade will use Austrian brand Fundermax panels. All communications will be installed according to the plan, only the electrical wiring will be brought into the apartment without boxing. A heat-efficient Itong block is used on the external perimeter, to which an additional 5 cm EPS will be added. The roof will be equipped with 15 cm PENOPLEX, while the parking covering slab will have an additional 10 cm PENOPLEX for extra thermal efficiency. The profiles of the windows will be made of high-strength 64-aluminum. The inner courtyard and free spaces from the street entrance will be landscaped with Italian seedlings and shrubs. The construction completion time is 4-5 months.
OtherInformation425
OtherInformation426
detailed-information
wet-spots
2
condition
თეთრი კარკასი
status
მშენებარე
project
არასტანდარტული
additional-information
AII_balcony
AII_basement
AII_elevator
AII_furniture
AII_withBuiltInKitchen
AII_garage
AII_heating
AII_lastFloor
AII_naturalGas
AII_storage
supermarket
school
pharmacy
loan-calculator
property-value427,000 ₾down-payment 20%
85,400₾
loan-term
15year
loan-interest-info
interest
down-payment
base
monthly-payment4,122 ₾
total-payment827,320 ₾
loan-calc-bottom-btn-text
find-out-price-dynamics ვეძისშიunit-avg-price-subtitle-prefix unit-avg-price-realestate-type-5 unit-avg-price-dealtype-4 in ვეძისში
unit-avg-price-chart-title
ID - 32617931
იყიდება 3 ოთახიანი ბინა ვეძისში
ისაკაძის ქ. 37
19/01/26 - 19:00
total-area
93.1 m2room-s
3bedroom
2floor
2/4description
OtherInformation425
OtherInformation426
wet-spots
2condition
თეთრი კარკასიstatus
მშენებარეproject
არასტანდარტულიadditional-information
AII_balcony
AII_basement
AII_elevator
AII_furniture
AII_withBuiltInKitchen
AII_garage
AII_heating
AII_lastFloor
AII_naturalGas
AII_storage
158,000 $
1 m2 - 1698 $