04 Mar, 21:02
364
ID - 34418753იყიდება 2 ოთახიანი ბინა ვარკეთილში
გახოკიძის ქ. 54გ
50,000
₾$
1 m2 - 926 $
1,446 ₾-a-month
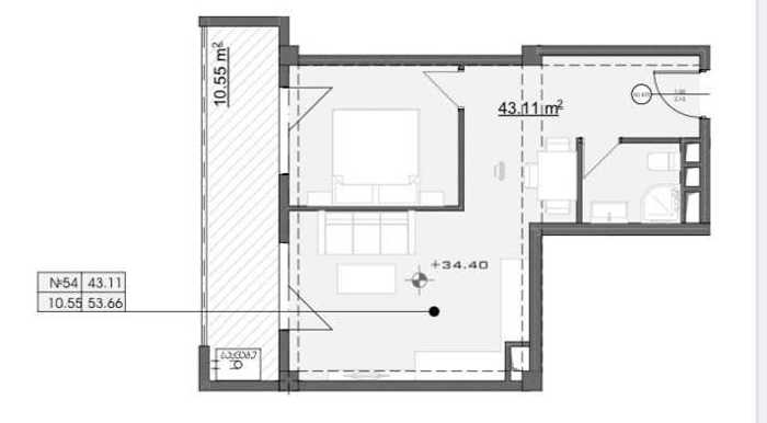
54m²
space
2
room-s
1
bedroom
5/11
floor
space
54m²room-s
2bedroom
1floor
5/11description
A nearly finished building has a flat for sale. At this stage, the price per square meter is $930! The price is final! On the 5th floor, everything is in a black frame condition. The building is almost finished, interior work is ongoing, and you can start renovations from the end of this month. It is possible to purchase through the bank, and the elevator is installed!
detailed-information
wet-spots
1
condition
შავი კარკასი
status
ახალი აშენებული
project
არასტანდარტული
additional-information
AII_balcony
AII_basement
AII_elevator
AII_furniture
AII_withBuiltInKitchen
AII_garage
AII_heating
AII_lastFloor
AII_naturalGas
AII_storage
urgent
urgent
position
nearby-objects
school
PL_VeryCheap50,000 $
PL_VeryCheap
PL_Expencive
PL_Cheap
PL_VeryExpencive
PL_Medium
50,000 $
PL_VeryCheap
PL_Cheap
PL_Medium
PL_Expencive
PL_VeryExpencive
loan-calculator
property-value137,000 ₾down-payment 20%
27,400₾
loan-term
15year
loan-interest-info
interest
down-payment
base
monthly-payment1,322 ₾
total-payment265,440 ₾
loan-calc-bottom-btn-text
find-out-price-dynamics ვარკეთილშიunit-avg-price-subtitle-prefix unit-avg-price-realestate-type-5 unit-avg-price-dealtype-4 in ვარკეთილში
unit-avg-price-chart-title
364
04 Mar 26, 21:02
ID - 34418753
იყიდება 2 ოთახიანი ბინა ვარკეთილში
54 m2
total-area
2
room-s
1
bedroom
5/11
floor
total-area
54 m2room-s
2bedroom
1floor
5/11description
A nearly finished building has a flat for sale. At this stage, the price per square meter is $930! The price is final! On the 5th floor, everything is in a black frame condition. The building is almost finished, interior work is ongoing, and you can start renovations from the end of this month. It is possible to purchase through the bank, and the elevator is installed!
detailed-information
wet-spots
1
condition
შავი კარკასი
status
ახალი აშენებული
project
არასტანდარტული
additional-information
AII_balcony
AII_basement
AII_elevator
AII_furniture
AII_withBuiltInKitchen
AII_garage
AII_heating
AII_lastFloor
AII_naturalGas
AII_storage
school
price-overview
price-overview-desc
PL_VeryCheap50,000 $
PL_VeryCheap
PL_Expencive
PL_Cheap
PL_VeryExpencive
PL_Medium
50,000 $
PL_VeryCheap
PL_Cheap
PL_Medium
PL_Expencive
PL_VeryExpencive
loan-calculator
property-value137,000 ₾down-payment 20%
27,400₾
loan-term
15year
loan-interest-info
interest
down-payment
base
monthly-payment1,322 ₾
total-payment265,440 ₾
loan-calc-bottom-btn-text
find-out-price-dynamics ვარკეთილშიunit-avg-price-subtitle-prefix unit-avg-price-realestate-type-5 unit-avg-price-dealtype-4 in ვარკეთილში
unit-avg-price-chart-title
ID - 34418753
იყიდება 2 ოთახიანი ბინა ვარკეთილში
გახოკიძის ქ. 54გ
04/03/26 - 21:02
total-area
54 m2room-s
2bedroom
1floor
5/11description
wet-spots
1condition
შავი კარკასიstatus
ახალი აშენებულიproject
არასტანდარტულიadditional-information
AII_balcony
AII_basement
AII_elevator
AII_furniture
AII_withBuiltInKitchen
AII_garage
AII_heating
AII_lastFloor
AII_naturalGas
AII_storage
PL_VeryCheap
50,000 $1 m2 - 926 $