ID - 31374958
იყიდება 4 ოთახიანი ბინა საბურთალოზე
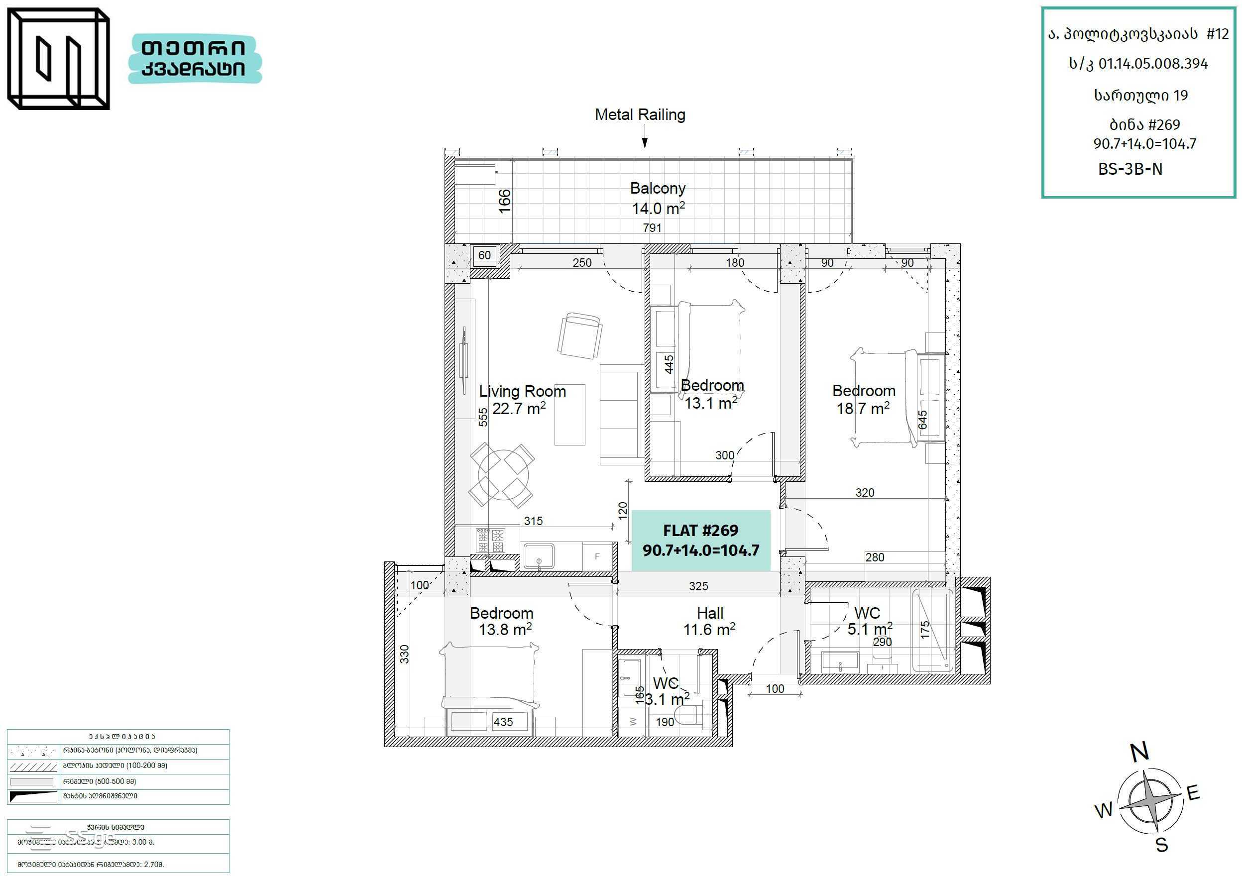
პოლიტკოვსკაიას ქ. (ჯიქიას ქ.) 12
22/10/25 - 01:34
total-area
104.7 m2room-s
4bedroom
3floor
19/19description
OtherInformation425
OtherInformation426
OtherInformation428
wet-spots
2condition
მწვანე კარკასიstatus
ახალი აშენებულიproject
არასტანდარტულიadditional-information
AII_balcony
AII_basement
AII_elevator
AII_furniture
AII_withBuiltInKitchen
AII_garage
AII_heating
AII_lastFloor
AII_naturalGas
AII_storage
upon-agreement
ირაკლი



