ID - 31821581
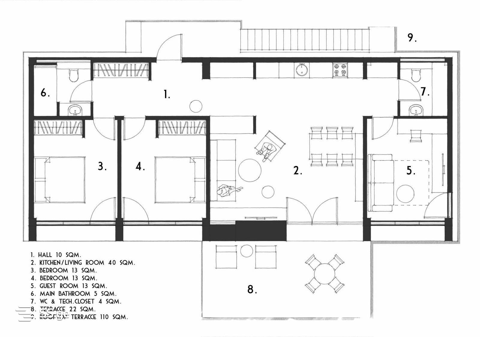
იყიდება 4 ოთახიანი კერძო სახლი საგურამოში



+ 1expired-app-date-text
ID - 31821581
იყიდება 4 ოთახიანი კერძო სახლი საგურამოში
29/09/25 - 15:40
house-area
240 m2room-s
4bedroom
3description
condition
თეთრი კარკასიstatus
ახალი აშენებულიadditional-information
AII_balcony
AII_basement
AII_drinkingWater
AII_furniture
AII_withBuiltInKitchen
AII_garage
AII_heating
AII_naturalGas
AII_storage
AII_withPool
upon-agreement
ნინი